春之歌-汤普森现代钢琴第一册五线谱预览1

高清图片下载 免费 安全无风险
春之歌-汤普森现代钢琴第一册五线谱预览1

春之歌-汤普森现代钢琴第一册五线谱预览1

点击图片查看原图

图片信息

  • 格式: JPG
  • 尺寸: 2500x3400
  • 大小: 约1.2MB

版权声明

相关标签

自然风光 高清壁纸 4K画质

分享图片

相关推荐

基于当前图片的相似推荐

21-春之歌 约翰·汤普森现代钢琴教程一(大汤1)原版 钢琴双手简谱

《春之歌(王霞演唱版)》简谱 林澍作词 谷建芬作曲 王霞演唱 第1页

《春之歌》简谱李谷一原唱 歌谱-钢琴谱吉他谱|www.jianpu.

春之歌(何也词 邓融和曲)简谱-曲谱 - 酷好简谱

春之歌,春之歌钢琴谱,春之歌a调钢琴谱,春之歌钢琴谱大全,虫虫钢琴谱

春之歌 谷建芬作品12 王霞版 王霞 歌谱 简谱

春之歌林澍词谷建芬曲春之歌林澍词 谷建芬曲简谱

春之歌音协考级第2级钢琴谱约翰9642汤普森a调流行钢琴五线谱

约翰汤普森现代钢琴教程一大汤121春之歌原版钢琴双手简谱简五谱钢琴

春之歌 合唱 歌谱简谱网

随机推荐

发现更多精彩图片

侯佩岑二胎怀男 孕期写真照曝光

绘画素材|有手就会的甜妹发型画法大合集 画甜妹怎么能少得了华丽可爱

莎庭实木架壁挂式壁柜悬空柜子墙上置物架房柜吊柜挂墙面展示柜 长80

孙杨gif开门gif伸头gif暗中观察gif

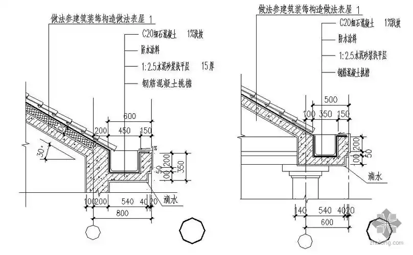
[东莞市]某豪园三期a5型别墅-檐口节点详图

护肤品品牌女人头像_微信头像图片大全

《星球大战3:绝地归来》发布重映海报,庆祝上映四十周年

老年画《荷花舞》华三川作-年画/宣传画-7788商城__七七八八商品交易

雅生汉斯格雅幻雨大顶喷花洒