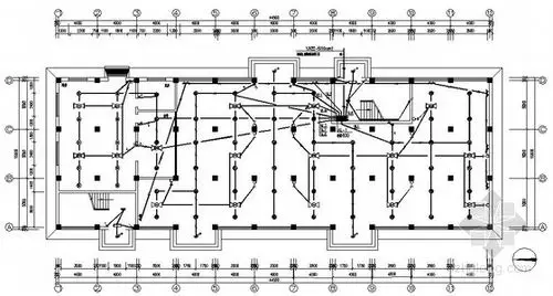
怎样用cad绘制漂亮电气图?_绘图_下图_平台

高清图片下载 免费 安全无风险
怎样用cad绘制漂亮电气图?_绘图_下图_平台

怎样用cad绘制漂亮电气图?_绘图_下图_平台

点击图片查看原图

图片信息

  • 格式: JPG
  • 尺寸: 600x365
  • 大小: 约1.2MB

版权声明

相关标签

自然风光 高清壁纸 4K画质

分享图片

相关推荐

基于当前图片的相似推荐

分享丨各种经典电气工程cad图纸

[分享]户型图别墅cad资料下载

200个常用的暖通,给排水cad图例符号与绘图方法!_管道_画法_标高

[分享]别墅排水cad资料下载

用autocad绘制漂亮电气图的方法

[分享]机房空调cad资料下载

[分享]管线布置cad图资料下载

图纸某地产业园光伏车棚电气cad施工图

一套弱电工程系统图,大样图及设计说明,cad素材!_施工_图纸_文档

全了室内cad电气设计教程含强弱电

分享水景水泵cad资料下载

[分享]学生食堂建筑cad图纸资料下载

随机推荐

发现更多精彩图片

你们最爱的奇卡诺花体字纹身

反贪风暴 张智霖 阔以嘛 soogif soogif出品 反贪风暴3

2020 lv,dior,chanel等10大秀场设计!_场景

姚霁月工笔柿子《共白头》步骤图解,愿有岁月可回首!

哆啦a梦水果蛋糕男孩水果蛋糕大泗县

游南京中山景区内四方城

常见邪恶gif出处第21期 | 我要集分宝

原创:空调改装水冷电气接线图(两种类型温控的接线方式)

【车辆名称】2021款 宝马3系 325li m运动套装 国 - 抖音