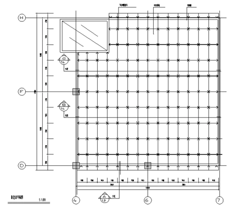
[分享]采光顶构造节点资料免费下载

高清图片下载 免费 安全无风险
[分享]采光顶构造节点资料免费下载

[分享]采光顶构造节点资料免费下载

点击图片查看原图

图片信息

  • 格式: JPG
  • 尺寸: 760x537
  • 大小: 约1.2MB

版权声明

相关标签

自然风光 高清壁纸 4K画质

分享图片

相关推荐

基于当前图片的相似推荐

07j205玻璃采光顶电子版图集高清版pdf格式免费版

下沉式庭院玻璃采光顶

玻璃顶棚大样图图片

玻璃采光顶与彩钢复合板节点详图 查看详情>> 立即下载 某采光顶节点

内蒙古某广场玻璃幕墙施工图含阳光顶cad

[节点详图]某大厦入口采光顶节点构造详图

铝制玻璃采光顶skymax

建筑玻璃采光顶的防水构造

某玻璃阳光房详细结构施工图cad

玻璃吊顶和悬空玻璃地面,五分钟搞定

下沉式庭院玻璃采光顶

随机推荐

发现更多精彩图片

看看更多的照片iu与蓝色头发如下:似乎iu还不够惊人,她决定用另一个意

星期五清晨早上好短信祝福语 2021最新漂亮早上好图片动态带字,最美

彩铅星空简易教程步骤

20亿年前的地球是啥样的

白银诺艾尔推特图20张

厦翔消化内科欢迎您

lisa滤镜头像拿图点赞收藏二传标明陈柒仪

正直 为人要正直! 做事分一二! 人好事做好! 周围人佩服!

8米底滤图片】大型鱼缸水族箱1.8米底滤图片大全_q友网

汉字告诉我们的真相手绘 图片 插画 唯美