工字钢生产过程,原来是拼接的!|工字梁|机械加工_网易视频

高清图片下载 免费 安全无风险
工字钢生产过程,原来是拼接的!|工字梁|机械加工_网易视频

工字钢生产过程,原来是拼接的!|工字梁|机械加工_网易视频

点击图片查看原图

图片信息

  • 格式: JPG
  • 尺寸: 668x375
  • 大小: 约1.2MB

版权声明

相关标签

自然风光 高清壁纸 4K画质

分享图片

相关推荐

基于当前图片的相似推荐

如一个带盖板的双工字钢构件见图14,由于对接焊缝的收缩量大于角焊缝

1,钢结构手工电弧焊焊接工艺流程

焊接接头有10种类型,分别是对接接头,搭接接头,角接接头,t形接头,端接

墙板连接件焊接连接结点钢梁栓钉焊接焊缝的超声波探伤墙板对接连接

老婆硬不听劝要买顶楼,还好层高5米2,用槽钢搭阁楼没人发现_工字钢

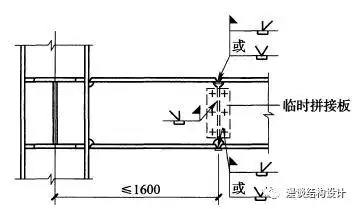
钢梁对接错口偏大或坡口较小问题2:连接板拼接不严密问题1:焊接临时码

原来新型悬挑工字钢有这么多优点_施工_钢梁_结构

你现在就差这套高层结构节点设计了!

柱与柱的连接 全焊接变截面工字形边柱 4.

悬挑工字钢锚固不牢固,擅自切割锚环,或锚环缺失.

工字钢租赁多少钱一天?工字钢租赁站怎么联系?

焊接接头的设计与焊接变形的关系及矫正措施

随机推荐

发现更多精彩图片

唯美古风古韵手机壁纸高清无水印上传

林心如拖地长裙美艳优雅大方美照图片88

杨幂的腿为什么那么细,美腿纤细修长白嫩光洁

发尾染 不一样的短发染发

杭州摇滚大叔街拍图片

王者荣耀# 常山赵子龙高清图片自取#王者荣耀赵云

现浇钢筋混凝土楼板的特点

【日历】1954年9月21日

zly型硬齿面齿轮减速机

丁嘉丽:捧红孙红雷的遗憾 丁嘉丽是娱乐圈的女强人,她曾经捧红孙红雷