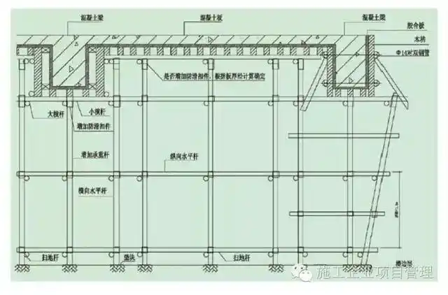
说明(1)模板支撑系统应优先选用技术成熟的定型化,工具式支撑体系.

高清图片下载 免费 安全无风险
说明(1)模板支撑系统应优先选用技术成熟的定型化,工具式支撑体系.

说明(1)模板支撑系统应优先选用技术成熟的定型化,工具式支撑体系.

点击图片查看原图

图片信息

  • 格式: JPG
  • 尺寸: 868x980
  • 大小: 约1.2MB

版权声明

相关标签

自然风光 高清壁纸 4K画质

分享图片

相关推荐

基于当前图片的相似推荐

模板支撑体系搭设正立面图

工程管理之模板工程技术方案(ppt)

模板支撑系统安全技术要点

[分享]建筑工程模板支架搭设控制要点

【建筑模板支撑盘扣式脚手架 盘扣桥梁热镀锌工艺防腐蚀支撑架】图片

建筑工程承插型盘扣式钢管支架施工要点培训讲义

超高_超重构件支模架的设计与安装-图 2 模板及梁底支撑架安装示意

钢筋混凝土模板支撑系统构造要求

收藏学习钢筋混凝土模板支撑系统构造要求

解读建筑施工承插型轮扣式模板支架安全技术规程

高大模板盘扣支撑架安全专项施工方案

三维工艺节点图解模板支撑工程构造及要求

随机推荐

发现更多精彩图片

(多图多流量慎入)我就是要吹爆嘎嘎,他在我心里.

瞒了23年的宋丹丹女儿比巴图优秀好几倍如今已是华人骄傲

自己动手更换两滤及蓝色小豪用车感受

李保田女儿胡水最新照片李保田到底有几个孩子

深灰色亚麻布料3d贴图_深灰色亚麻布料3d贴图下载_深灰色亚麻布料3d

地铁3号线二期11座车站封顶 东南半环预计2020年通车

[钢琴谱] 看月亮爬上来

幼儿最美妈妈创意画,创意画作品一等奖-图片大观-奇异网

线描芒果写生附步骤图