农村自建房15米宽,10米深有什么好设计?_手机搜狐网

高清图片下载 免费 安全无风险
农村自建房15米宽,10米深有什么好设计?_手机搜狐网

农村自建房15米宽,10米深有什么好设计?_手机搜狐网

点击图片查看原图

图片信息

  • 格式: JPG
  • 尺寸: 1280x1037
  • 大小: 约1.2MB

版权声明

相关标签

自然风光 高清壁纸 4K画质

分享图片

相关推荐

基于当前图片的相似推荐

15x10米农村小别墅,轻奢遇上现代田园,美到邻居争相模仿!

15x10米经典二层小别墅四款户型布局哪种更实用

15x10米二层田园风格农村自建房轩鼎建筑设计

有了建房的打算,一定要有规划,提前做好准备,不让自己处于过于被动的

15x12米农村别墅,老人房大餐厅多卧室带内卫,尽享舒适生活

微信公众号:住宅公园,免费300套自建房别墅图纸下载,乡村别墅设计

15x10米农村房,户型方正,清新

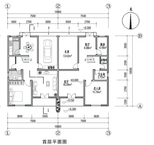
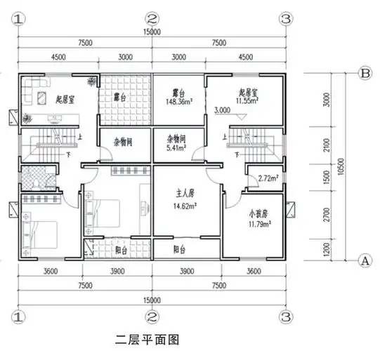
农村自建房15米宽10米深有什么好设计

10米,占地面积150平方米,建筑面积320平方米,适合农村地型和建房要求

15米面宽的3栋农村自建房,双拼,独立厨房和四开间的户型

15x10米3层农村自建房,14间卧室,你丫的家里开宾

15×10米二层乡村小别墅,盛满人间烟火气息

随机推荐

发现更多精彩图片

冯绍峰搭档童瑶拍戏,躲室内抽烟玩手机,一脸愁容心情不佳

易烊千玺代言海报图片桌面壁纸

有哪些好看的韩国电影值得推荐

重庆特产锦悦白芝麻牛皮糖花生麦芽糖手工老式牛筋糖散装整箱25斤

保罗鲨鱼-长沙砂之船奥莱的笔记

仪表盘上的指示灯都是啥意思? | 知势讲堂

暗示表情包 - 蘑菇头暗示表情包 - 日常表情包

生日蛋糕蜡烛 爱心五角星星星金色银色无烟可食用母亲节蜡烛

茂名早熟三华李已上市睇到流口水但竟要近40元斤

生日快乐表情包合集