关键词: 转换层y型柱施工工法自密实混凝土浇筑钢筋

高清图片下载 免费 安全无风险
关键词:        转换层y型柱施工工法自密实混凝土浇筑钢筋

关键词: 转换层y型柱施工工法自密实混凝土浇筑钢筋

点击图片查看原图

图片信息

  • 格式: JPG
  • 尺寸: 997x621
  • 大小: 约1.2MB

版权声明

相关标签

自然风光 高清壁纸 4K画质

分享图片

相关推荐

基于当前图片的相似推荐

一文看懂梁钢筋的构造与识图!

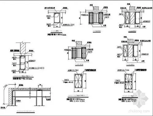
参考国标图集18g901第2-35页,转换梁处柱根节点内钢筋密集, 已施工

新增梁大样,夹梁,新增托换梁大样,新增托换柱大样,托换柱柱顶钢筋

转换梁上起柱节点大样.jpg

某托梁节点构造详图(5)

某托梁节点构造详图(3)

某托梁节点构造详图(1)

梁箍筋的不同配置中,其中( )项最符合相关规范,规程规定的最低构造

某预应力框支转换梁节点构造详图

49个构件制作节点构造详图

随机推荐

发现更多精彩图片

听起来很假的真新闻!从撒贝宁到张译,个个离谱又惊人

大家伙儿都被kimi的软萌模样给可爱到了

王瑞子夏季清新写真曝光

统一金桔柠檬水果饮料 500ml*15瓶

可爱 制杖 搞怪 熊本熊 头像

宏科华老式帆布躺椅小型折叠椅简易家用阳台方便休闲懒人办公室午休

中式四合院仿古实木大门农村自建房别墅门入户门庭院大门围墙大门-度

杭州市 住宿服务 酒店 > sheraton grand hangzhou binjiang hotel

飘窗衣柜收纳柜一体柜子组合套装现代简约储物床小户型卧室收纳床

最低248元,强送观影年卡"一卡在手,走遍天下",加勒比海水世界年卡实现