烟酒茶网 商标公告

高清图片下载 免费 安全无风险
烟酒茶网 商标公告

烟酒茶网 商标公告

点击图片查看原图

图片信息

  • 格式: JPG
  • 尺寸: 1032x852
  • 大小: 约1.2MB

版权声明

相关标签

自然风光 高清壁纸 4K画质

分享图片

相关推荐

基于当前图片的相似推荐

祥云字新款墙贴超市副食店酒行茶馆玻璃门橱窗广告贴纸茶烟酒中式

260 em>烟酒 /em>茶 em>汇 /em>

i>烟 /i>茶 i>酒 /i>可爱书法艺术字

茶烟酒艺字玻璃门贴纸茶庄茶馆茶叶店装饰广告橱窗自粘背景墙贴画角线

烟酒茶简约中国风创意字体

贰陆零 em>烟酒 /em>茶 em>汇 /em>

分类:第30类-方便食品商标申请人:台湾烟酒股份有限公司办理/代理机构

随机推荐

发现更多精彩图片

帅气小鲜肉男明星吴亦凡手机图片桌面壁纸

一年级语文上册#生字笔顺#字帖90大家点zan自取哦直接打印即可视妹

本就这样诞生啦超喜欢这种无封面图案的本子,可以随意创作#简笔画教程

路虎神行者图片(路虎神行者2022款报价及图片)

泉州市副市长雷连鸣2024泉州愿携手总台共建共创共赢

国辉壁纸(国徽壁纸高清图片)

全职高手 肖时钦 棕色短发 收脸表演出高温丝假毛cosplay假发正品

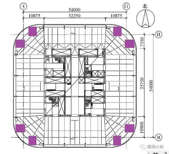
图62 典型平面图建筑高度528m,地上112层,地下8层.

csgo皮肤推荐:mp9 星使 (全磨损展示)csgo苏哥推荐皮肤

丰田 普拉多 2005款 4.0l 自动gx运动dvd版图片