星学院:美星参透魔最高境界,生命树共鸣,一切就看她的了

高清图片下载 免费 安全无风险
星学院:美星参透魔最高境界,生命树共鸣,一切就看她的了

星学院:美星参透魔最高境界,生命树共鸣,一切就看她的了

点击图片查看原图

图片信息

  • 格式: JPG
  • 尺寸: 658x370
  • 大小: 约1.2MB

版权声明

相关标签

自然风光 高清壁纸 4K画质

分享图片

相关推荐

基于当前图片的相似推荐

星学院:美星集合众人的力量,发出最后一击,还是没能打倒白墨-母婴亲子

星学院:美星捧人技术一流,成功之后很开心,笑的太可爱了

盘点星学院美星全部变身

这部动漫的名称是:星学院.第一位人物名字是美星.

《 a target="_blank" href="/item/星学院/17506175" data-lemma

随机推荐

发现更多精彩图片

精选唯美设计高清电脑桌面壁纸图片

王一博女友个人资料简介王一博的5个绯闻女友

首页 桌面壁纸 风景壁纸 超清护眼唯美风景图片电脑壁纸

蓼蓝-堆糖,美好生活研究所

赛维思英语 英语培训 绿色背景图 abc 云朵 设计 广告设计 名片卡片

世界介绍斗破苍穹_斗破苍穹官方合作网站_斗破苍穹客户端下载_斗破

2004年,14岁的柳乐优弥凭借《无人知晓》获得第57届戛纳国际电影节主

肖寺社区幼儿园大班宝贝户外游戏活动,创意剪纸,户外音乐游戏展示

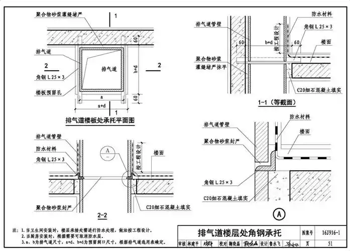
图集解读图解16j9161住宅排气道一各大修编亮点

你总是逆转裁判狩魔冥

我难以抗拒#金罗 #叶罗丽x金花冠 #罗丽 #金王子 @do - 抖音

yoga91椅子瑜伽体式照|九宫格(建议收藏) 每拍一次体式照00