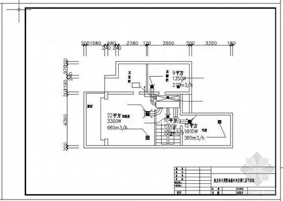
某办公楼溴化锂空调图纸

高清图片下载 免费 安全无风险
某办公楼溴化锂空调图纸

某办公楼溴化锂空调图纸

点击图片查看原图

图片信息

  • 格式: JPG
  • 尺寸: 760x366
  • 大小: 约1.2MB

版权声明

相关标签

自然风光 高清壁纸 4K画质

分享图片

相关推荐

基于当前图片的相似推荐

分享中央空调设计图cad资料下载

19套汽车空调课程设计 毕业设计(正文 cad图纸)

必看中央空调cad图例及安装大样图

必看中央空调cad图例及安装大样图

活动中心空调安装大样图cad

空调机房装修大样资料下载-暖通空调机房大样图cad

[分享]餐厅中央空调cad平面图资料下载

[分享]餐厅中央空调cad平面图资料下载

[北京]高层综合楼空调机房详图cad

分享别墅中央空调cad图资料下载

[分享]别墅中央空调cad图资料下载

必看中央空调cad图例及安装大样图

随机推荐

发现更多精彩图片

饭制"名利场回眸"照 这个霸总白敬亭让你反复仰卧起坐

怎么画小红花的简笔画

国画"悟空",幽默又充满哲理,看了开心一整天!

毛戈平化妆学校学员创意彩妆作品

定义小课堂:皮赘仅仅花了几分钟,激光治疗之后,小何(化名)脖子上的小

【图】火蓝刀锋向羽和巴郎 展示现代军人的铮铮傲骨

炸串食材批发烧烤调料撒料烤肉秘制烧烤料刷料椒盐烧烤蘸料腌料

正品富立巧克力朱古力可可奶茶原料多种口味1kg珍珠奶茶粉

李睿讲故事第一期:《司马光砸缸》

最强重机枪:第1是"希特勒电锯"第3外形奇特,被称"鸡脖子"

pbr 二战美国海军 弗莱彻级驱逐舰