玻璃栏板计价

高清图片下载 免费 安全无风险
玻璃栏板计价

玻璃栏板计价

点击图片查看原图

图片信息

  • 格式: JPG
  • 尺寸: 1334x881
  • 大小: 约1.2MB

版权声明

相关标签

自然风光 高清壁纸 4K画质

分享图片

相关推荐

基于当前图片的相似推荐

室内外玻璃扶手栏杆通用节点施工图 商场玻璃栏杆通用大样

纯玻璃栏杆施工很难?5分钟足够解决它的结构问题了!

us150铝合金玻璃栏杆2 副本.jpg

阳台玻璃栏杆通用大样图

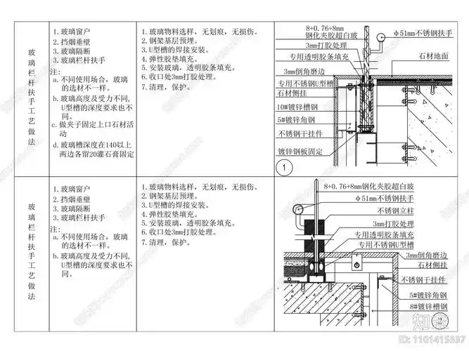
玻璃栏杆扶手做法大样施工图下载【id:1101415337】

玻璃栏杆立面剖面大样图cad电子版 楼梯栏杆商场拦河做法详图资料

景观园林室外玻璃栏杆详图cad

内容简介: 玻璃-不锈钢栏杆节点详图 包含:平面图,立面图,大样图.

分享玻璃栏杆cad节点图资料下载

[分享]玻璃不锈钢栏杆施工图资料下载

随机推荐

发现更多精彩图片

明星旗袍女人:这些女明星的气质各不相同,有的高贵典雅,有的温婉可人

聊天背景图精选高清格子控壁纸锁屏

化疗帽子女薄光头帽透气包头帽夏季蕾丝套头帽百搭头巾月子空调

伊利牧场香草味奶昔杯雪糕3杯冰淇淋小杯冰激凌冰淇淋

蜡笔小新配音蜡笔小新配音员

串级控制系统(机械工程 名词)

21岁何超欣麻省理工双学位毕业 何猷君纪录被破:已经超越我

天行九歌 焰灵姬 超高清手机壁纸

0407 丙戌(2006)年作 芦苇小鸟 立轴 设色纸本