美艳动人的小姐姐-美女壁纸 - 壁纸家

高清图片下载 免费 安全无风险
美艳动人的小姐姐-美女壁纸 - 壁纸家

美艳动人的小姐姐-美女壁纸 - 壁纸家

点击图片查看原图

图片信息

  • 格式: JPG
  • 尺寸: 1920x1080
  • 大小: 约1.2MB

版权声明

相关标签

自然风光 高清壁纸 4K画质

分享图片

相关推荐

基于当前图片的相似推荐

居家 养眼 清纯可爱小姐姐4k美女壁纸3840x2160

渣男必备小姐姐壁纸

渣男必备小姐姐壁纸

追梦赤子心:议论文作文约900字

兔牙小姐姐插画图片壁纸

俏皮可爱马尾小姐姐美图桌面壁纸

手机壁纸高清全屏女生唯美超萌的小姐姐

有没有你认为好看的全面屏小姐姐壁纸?

可爱萌系小姐姐高清桌面壁纸

有没有你认为好看的全面屏小姐姐壁纸

ai 美女小姐姐壁纸图

随机推荐

发现更多精彩图片

初音未来q萌~ - 堆糖,美图壁纸兴趣社区

干净让人心静的高清图片,让人看了就静心的高清图片(50张唯美禅意风景

松江旅游必去十大景点

电视背景墙壁纸5d墙纸客厅欧式大气无缝墙布3d影视墙浮雕花纹壁画

衡水二中庆祝建党100周年学生合唱比赛第二场

翱翔天空的雄鹰图片桌面壁纸

动漫同人小说 偶像活动之初生的太阳配角接下来是最后一位选手大空明.

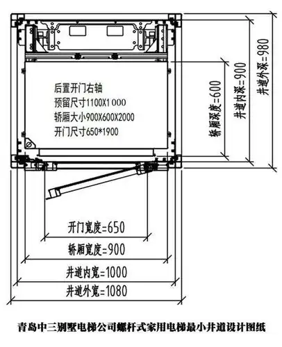
下图是螺杆式家用电梯最小尺寸设计图纸,井道外尺寸为1080*980,设备

小学生绘画作品:集体献爱心-儿童水粉画-小鸭子儿童乐园littleducks.