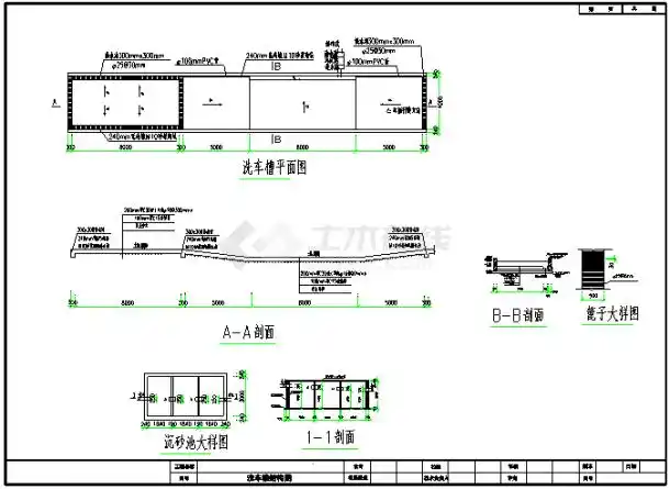
现场临时洗车槽结构设计cad图

高清图片下载 免费 安全无风险
现场临时洗车槽结构设计cad图

现场临时洗车槽结构设计cad图

点击图片查看原图

图片信息

  • 格式: JPG
  • 尺寸: 610x432
  • 大小: 约1.2MB

版权声明

相关标签

自然风光 高清壁纸 4K画质

分享图片

相关推荐

基于当前图片的相似推荐

十套工地现场实用的洗车槽 沉淀池cad施工图纸

某地一款比较实用洗车槽图纸(含沉砂池)

某建筑工地洗车槽建筑设计cad图纸

工地洗车槽(附施工图).doc 4页

建筑工地洗车槽冲洗区临时洗车台洗车池入口冲洗区沉砂池cad图

工地洗车槽(附施工图).doc 4页

[分享]洗车池图纸详图资料下载

一个实用的洗车池图

每个建筑工地必备一套洗车池施工做法及使用管理措施

某地一款比较实用洗车槽含沉砂池

每个建筑工地必备一套洗车池施工做法及使用管理措施

随机推荐

发现更多精彩图片

女生头像:emo丧系头像

像曼塔玫瑰一样美丽动人高贵的珍珠戒指95.

q版白蛇传小青卡通头像设计

小孩儿脸上长这种小痘痘是怎么回事?_百度宝宝知道

638_229gif 动态图 动图

佛系头像 荷花的花语:"我永远只属于你,不用质疑我对你的爱,属于你的

朝圣藏地第一座寺院桑耶寺

魅力独具死神觉醒诺5成十刃压轴

1-4月湛江各区县财政:遂溪县第1,吴川市力压徐闻市,赤坎区垫底