《逆水寒手游》梦幻西游联动开启时间攻略

高清图片下载 免费 安全无风险
《逆水寒手游》梦幻西游联动开启时间攻略

《逆水寒手游》梦幻西游联动开启时间攻略

点击图片查看原图

图片信息

  • 格式: JPG
  • 尺寸: 600x300
  • 大小: 约1.2MB

版权声明

相关标签

自然风光 高清壁纸 4K画质

分享图片

相关推荐

基于当前图片的相似推荐

爱趣游戏_变态游戏下载门户_好玩的手机游戏排行榜

十大不氪金的卡牌手游有哪些 2024最良心的卡牌手游排行榜

2024好玩的回合制手游排行榜 经典的回合制手游盘点

2024耐玩的休闲类手游有哪些 好玩的休闲手游排行榜推荐

塔防类手游排行榜前十名 2024热门塔防手游下载推荐

热门好玩的q版仙侠推荐有趣的q版仙侠手游排行榜

塔防游戏手游排行榜前十名,2024最火的塔防游戏推荐

修仙手游人气排行榜前十 2024修仙游戏十大必玩之作

爱趣游戏_变态游戏下载门户_好玩的手机游戏排行榜

本次排行榜包含了:仙灵物语-q版梦幻回合制手游,大话白蛇-q版回合制

2024回合制西游类手游推荐 0.05折扣西游类游戏排行榜

随机推荐

发现更多精彩图片

韩网游代言人被称韩版干露露

舒适主义王校长王思聪吃热狗面包创意贴纸ig队标油箱盖油号车贴游戏车

服装设计手绘复古裙子款式图线稿图手稿图

kaws 又来新玩偶!这雕塑之前在画展是出现过,现在玩偶化了.

求助女儿鼻子到底是什么病

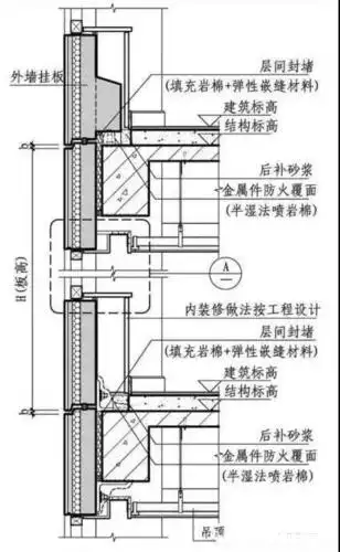
几种外墙挂板的墙身剖面图示例

轻奢客厅装饰画沙发背景墙挂画现代简约三联画北欧招财麋鹿墙壁画

2019年11月25日 11:09 关注 女生头像 玩网女头 高端女头 电竞

饮品加盟?嘻果记一个有态度的品牌!

我的人生轨迹 原广州军区副政委兼广州军区空军政委.1990 - 抖音