防空地下室电气设备安装图集 pdf高清免费版下载地址 07fd02图集介绍

高清图片下载 免费 安全无风险
防空地下室电气设备安装图集 pdf高清免费版下载地址 07fd02图集介绍

防空地下室电气设备安装图集 pdf高清免费版下载地址 07fd02图集介绍

点击图片查看原图

图片信息

  • 格式: JPG
  • 尺寸: 781x547
  • 大小: 约1.2MB

版权声明

相关标签

自然风光 高清壁纸 4K画质

分享图片

相关推荐

基于当前图片的相似推荐

07fd02人防电气密闭套管dn806个一组镀锌管人防组合套管刚性防水套管

07fd02人防套管图集人防套管预埋图集

穿墙管密闭肋结构图

07fs02两侧防护穿墙套管abcdef型人防密闭套管人防通风套管可定制

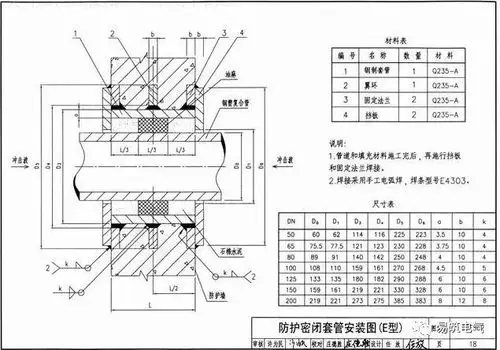
见下图:密闭翼环应位于墙体厚度的中间,并应与周围结构钢筋焊牢,密闭

人防密闭套管怎样定价

防空地下室电气设备安装图集 pdf高清免费版下载地址 07fd02图集介绍

随机推荐

发现更多精彩图片

胜利,更在世界政坛上叱咤风云,还让人们记住了代表胜利的"v"字手势

《合金装备》"snake"/"bigboss"/蛇叔手机壁纸

舰队collection 舰娘大和号&武藏号 动漫手机壁纸下载

羊山新区哈敦幼儿园防溺水安全教育宣传

16个图标怎样摆成心型

fgo 英灵志之伊什塔尔

血脂高血管易堵塞教你8招软化血管降血脂的方法

水豚在水中 壁纸 - 1440x900

蓝色箭: 外侧弓状韧带,绿色箭: 内侧弓状韧带

教大家来画一只颜色艳丽的棘龙

毛衫图案菠萝凤梨毛衣免费素材