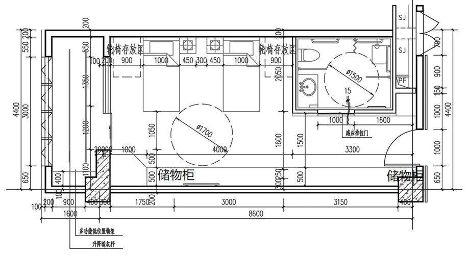
无障碍灶台的高度为750mm

高清图片下载 免费 安全无风险
无障碍灶台的高度为750mm

无障碍灶台的高度为750mm

点击图片查看原图

图片信息

  • 格式: JPG
  • 尺寸: 760x901
  • 大小: 约1.2MB

版权声明

相关标签

自然风光 高清壁纸 4K画质

分享图片

相关推荐

基于当前图片的相似推荐

中国最牛的无障碍设计

无障碍设计案例_3645422

2012年一级注册建筑师考试习题集无障碍设计作图题

居家养老模式下的室内无障碍设计研究

交通设施无障碍设计公平对待所有行人避免悲剧再次发生

无障碍元素无障碍标准大科普之低位服务设施

无障碍公寓平面图运动员客房4.10mx8.40m,面积为34.44㎡.

公交车站无障碍设计ppt

无障碍设计案例_3645423

随机推荐

发现更多精彩图片

莫妲 佐藤聪美桃胡子 中村浩太郎林德伯格 菅沼久义贝蒂 甲斐田裕子

登帕萨快捷酒店为我们准备的鲜花铺床

超喜欢纸钞屋里的内罗毕

青春吉他谱(图片谱,弹唱)_沈庆_心动吉他曲谱集第1集_125.gif

卡通手绘38妇女节女神节女王节女王人物素材

特价灰色双面羊绒大衣女

东巴木刻画丽江工艺品商务礼品大鹏神鸟

香奈儿cocohandle小号海军蓝手提包

祝贺神舟十四号载人飞船发射成功

手机通讯红米5plus高配464gb

潮玩手办 #高达 #盲盒 北京搜秀城四层,简直就是男生的快乐源泉之