温柔可爱的古代女子简笔画简笔画|可爱古风小姐姐人物小头像女孩卡通

高清图片下载 免费 安全无风险
温柔可爱的古代女子简笔画简笔画|可爱古风小姐姐人物小头像女孩卡通

温柔可爱的古代女子简笔画简笔画|可爱古风小姐姐人物小头像女孩卡通

点击图片查看原图

图片信息

  • 格式: JPG
  • 尺寸: 667x500
  • 大小: 约1.2MB

版权声明

相关标签

自然风光 高清壁纸 4K画质

分享图片

相关推荐

基于当前图片的相似推荐

古风人物线稿来袭!_每日讲画-站酷zcool

古风人物线稿含详细步骤说明练起来

古风美人#手绘动漫人物#铅笔画 绝色花魁 - 抖音

游戏/动漫人物造型专业手绘技法(古风篇)

古风q版漫画人物画法图集500p 二头身角色 线条排线练习 线稿素材

画9张简笔画表白图片网古风女子吹笛手绘-搜狗搜索-10kb 靴子画法动漫

古风动漫人物手绘线稿

人物线稿黑白动漫素材手绘插画绘画古风

《古风插画嘴巴的基本画法》by 用户6319

游戏/动漫人物造型专业手绘技法(古风篇)

古风超简单 古风漫画初级绘画教程 综合基础卷最新章节_爱林博悦著

随机推荐

发现更多精彩图片

我想看看权志龙最帅的照片能让我忘我的那种

的饭团97@华晨宇yu看着好好吃的样子哈哈哈哈奶呼呼也好像小94哦

陈翔 格式: 简谱 风格: 流行类 上传时间: 2015-04-13 烟火

新年男生情侣头像画师:豫源azure

香蕉最能增强记忆力

时间继电器控制间歇性输出,我要一台电机工作30秒后停止30秒,再循环

海景房台式组装电脑主机推荐无偿写配置

我想说的是我喜欢你时雨同学

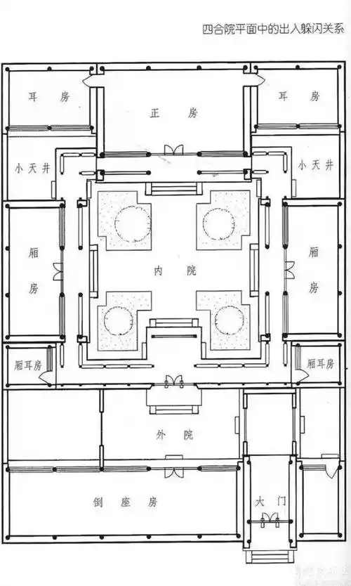
关于四合院最全的一篇介绍

日理万姬宣布游戏内将加入三上悠亚专访内容实录