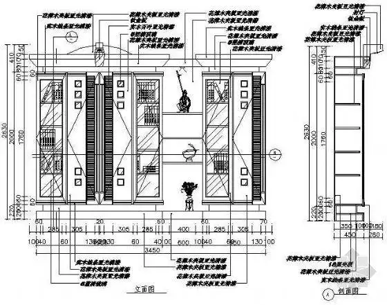
书柜cad三维图块集

高清图片下载 免费 安全无风险
书柜cad三维图块集

书柜cad三维图块集

点击图片查看原图

图片信息

  • 格式: JPG
  • 尺寸: 420x560
  • 大小: 约1.2MB

版权声明

相关标签

自然风光 高清壁纸 4K画质

分享图片

相关推荐

基于当前图片的相似推荐

公摊30%实用面积仅有92平,自己装修买材料,装完后我觉得值

[分享]书柜节点cad资料下载

[分享]书房su时尚资料下载

太阳能爆闪灯cad图纸资料下载-51套书柜书架设计cad设计图纸

[分享]cad下载书柜图块资料下载

分享书架图块cad资料下载

[分享]cad下载书柜图块资料下载

[分享]cad下载书柜图块资料下载

定制电脑台式桌转角书桌家用书架书柜一体组合简拐角桌子北欧电脑桌

随机推荐

发现更多精彩图片

巧家县第十六届人民代表大会第五次会议隆重开幕

科比壁纸 | 球衣号码!

琉璃手游是一款角色扮演类型的动作冒险手机游戏,游戏采用经典的仙侠

乳块消糖浆(独家/新品)

监控画面清晰,不漏死角

怀旧经典8090(载悠盘)头像

安倍昭惠:开酒馆闹绯闻,不生孩子不理婆婆,首相丈夫敢怒不敢言_场合

鱼缸背景贴纸鱼缸背景贴纸海洋海底世界正面自带胶红龙鱼蓝色高清耐用

极窄边框玻璃门厨房推拉门阳台钛镁铝合金移门隔断极简三联动新款

品胜车载充电器迷你转换插头