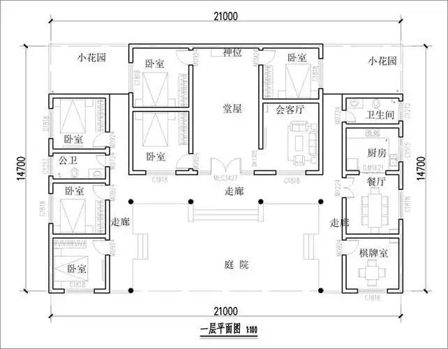
120平米左右农村小四合院设计,韵味十足,满足四世同堂大家庭

高清图片下载 免费 安全无风险
120平米左右农村小四合院设计,韵味十足,满足四世同堂大家庭

120平米左右农村小四合院设计,韵味十足,满足四世同堂大家庭

点击图片查看原图

图片信息

  • 格式: JPG
  • 尺寸: 640x575
  • 大小: 约1.2MB

版权声明

相关标签

自然风光 高清壁纸 4K画质

分享图片

相关推荐

基于当前图片的相似推荐

四合院 - 热门商品专区

双拼四合院每户120平米,用玻璃做檐廊不占面积

四合院设计图 平面图

120平米现代中式三层独栋别墅11x11——润润四合院设计刘鹰

下面给出几个新中式四合院设计,有效果图和户型图,以供参考和借鉴.

120平米左右农村小四合院设计韵味十足带你领略中式建筑的美

标准型仿古四合院建筑工程【东方晨光】

农村建房120平米,有两户合建就可以拼个四合院,这样建既不超面积又有

一层农村自建房10万元以下四合院_农村一层四合院10万左右_农村自建房

润润四合院设计小房大院120平米新中式别墅前庭后院还有车库

宜宾长宁一层中式四合院别墅设计,父母看了很喜欢

随机推荐

发现更多精彩图片

陈奕迅参加一秒前奏猜歌大挑战!视频歌曲大起底!(一)

各位有蜡笔小新小爱的头像吗? - 知乎

图片素材70幅cyberpunk赛博朋克风格的图片

王者荣耀腹肌#王者荣耀赵云龙年限定 - 抖音

龙湖九里香醍(别墅),润锡中路-无锡龙湖九里香醍(别墅)二手房,租房

> 文章内容 >> 酒店前台的接待礼仪知识有哪些 怎么做好酒店前台接待

朋友圈九宫格79 七夕专用发射爱心素材 分享一组有创意的朋友圈九宫

鸟笼巨型户外铁艺装饰大号超大型餐厅酒店卡座鸟笼

常温型彩色沥青冷补料夏季高温路面改色翻新摊铺工艺

05中国红镁骑士喜德盛高端镁合金青少年自行车,将民族文化融入涂装

地下连续墙的设计,详细解说!

雷奥哈德耐用减速电机是你设备的好帮手