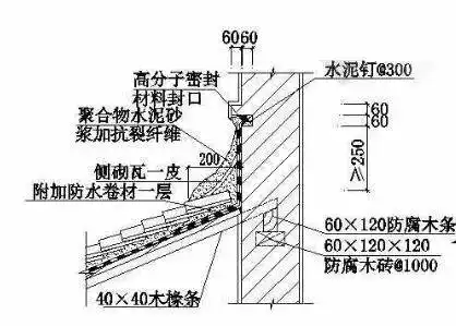
昆明旅游度假山庄屋面整改装饰仿古筒瓦

高清图片下载 免费 安全无风险
昆明旅游度假山庄屋面整改装饰仿古筒瓦

昆明旅游度假山庄屋面整改装饰仿古筒瓦

点击图片查看原图

图片信息

  • 格式: JPG
  • 尺寸: 698x523
  • 大小: 约1.2MB

版权声明

相关标签

自然风光 高清壁纸 4K画质

分享图片

相关推荐

基于当前图片的相似推荐

小青瓦是一种最常见的古建材料,从古至今,在建筑产品的发展过程,以一

沥青瓦油毡瓦的铺设方法图片,老师傅一教包会

自建房别墅坡屋顶沥青瓦制作施工工艺

合成树脂瓦安装指南

屋面铺设小青瓦的操作工艺流程:铺瓦准备工作→基层检查→上瓦,堆放

合成树脂瓦安装指南图文详解

安徽传树秸秆瓦安装流程指南及图解

建筑工程屋顶常见做法及构造要求培训讲义

[分享]瓦屋面施工工艺

随机推荐

发现更多精彩图片

沧海一声笑 c调 初学者简易版 钢五双手简谱 钢琴谱

女生晚上睡觉穿内衣的危害

孙燕姿遇见尤克里里指弹教学曲谱

头,一个人,无人,横图,插画,室内,白天,白色背景,正面,数码,科技,大脑

情侣头像带着抖音最火的1000张情头来更新啦爆炸多

备忘录文字 句子 文字 治愈 正能量 文艺 励志 iphone壁纸 自制壁纸

树脂雕塑 精致仿皮纹十字架摆件摆饰 金句经文(八福)基督教

p>直达特快列车简称直特,是 a target="_blank" href="/item/中国