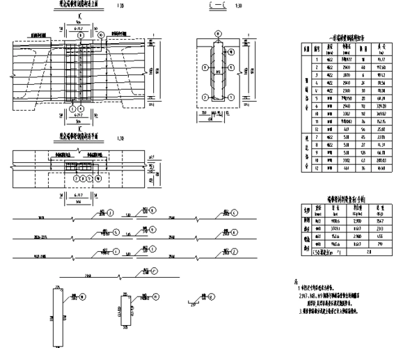
某跨海钢结构公路桥全套设计施工图图纸下载_公路桥梁图图纸 - 沐风网

高清图片下载 免费 安全无风险
某跨海钢结构公路桥全套设计施工图图纸下载_公路桥梁图图纸 - 沐风网

某跨海钢结构公路桥全套设计施工图图纸下载_公路桥梁图图纸 - 沐风网

点击图片查看原图

图片信息

  • 格式: JPG
  • 尺寸: 721x502
  • 大小: 约1.2MB

版权声明

相关标签

自然风光 高清壁纸 4K画质

分享图片

相关推荐

基于当前图片的相似推荐

[海口]四车道桥梁工程施工图-路桥工程图纸-筑龙路桥市政论坛

[安徽]双向八车道城市主干路桥梁工程设计图-路桥工程图纸-筑龙路桥

桥墩基础钢筋设计图.png

内容简介 某现浇桥面板钢筋节点构造详图,共1张图纸

30m跨径连续钢构桥梁上部结构施工图(22张)-路桥工程图纸-筑龙路桥

现浇箱梁钢筋图纸讲解,桥梁箱梁图纸详解图_大山谷图库

桥墩盖梁钢筋构造图

16米桥梁构造配筋图-路桥工程图纸-筑龙路桥市政论坛

【桥梁结构】某13m跨度5m宽交通桥梁结构钢筋图_cad图纸下载_土木在线

看懂桥梁工程图,工作更靠谱!_构件_钢筋网_桥墩

t梁预应力钢束定位钢筋布置图

t梁伸缩缝端梁端锚下钢筋布置图

随机推荐

发现更多精彩图片

科颜氏高保湿乳液 (125ml)

【菩提叶书签】菩提本无树 藏于书签间

花胸老虎_胸部新传统纹身图案大全 - 纹身大咖

狐狸被狗养成同类了? 放松的表情根本「月月」

全新手工对襟丝绸棉袄

物品整整齐齐,井然有序的摆放在仓库的物架上.

奇迹暖暖搭配 #国风古韵 #古风 #少女心爆棚 #古装仙女 - 抖音

革命现代京剧《智取威虎山》剧照 stage photo of the revolutionary

便宜出售一只可爱"比熊"小狗

大风堂弟子胡爽庵画虎作品欣赏