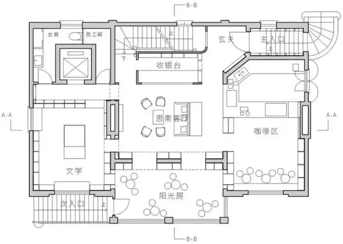
【已回复】一个书吧,求大神指导_平面研讨_室内设计联盟 - powered by

高清图片下载 免费 安全无风险
【已回复】一个书吧,求大神指导_平面研讨_室内设计联盟 - powered by

【已回复】一个书吧,求大神指导_平面研讨_室内设计联盟 - powered by

点击图片查看原图

图片信息

  • 格式: JPG
  • 尺寸: 1280x1024
  • 大小: 约1.2MB

版权声明

相关标签

自然风光 高清壁纸 4K画质

分享图片

相关推荐

基于当前图片的相似推荐

书吧平面设计布置图

环境设计优秀快题案例分析4(书吧空间)

在隽秀江南设计一间有光降临的森系书店间睦设计

梧桐树下,偶遇上海最美洋房书店!

大同书城——24h书吧

书店设计——"知识的起点"

书吧阅读空间-公开的收藏夹-站酷 (zcool)

最近做的一套美式工业风书吧设计

随机推荐

发现更多精彩图片

破旧的地面铺装贴图3d贴图_破旧的地面铺装贴图3d贴图下载_破旧的地面

活动作品阴阳师被遗忘的式神追月神

三岁短发儿童可爱丸子头

反复发热8天,皮疹3天,考虑麻疹

步步高超市万载万象店

雷克萨斯 rx经典 2009款 350 豪华版图片

我你都不在意那你在意什么在意大利吗是什么梗我你

2023年全新宝马120i耀夜_宝马1系车友圈_懂车帝

宁波舟山港:新年迎"开门红"