圣经故事:耶稣受难ppt

高清图片下载 免费 安全无风险
圣经故事:耶稣受难ppt

圣经故事:耶稣受难ppt

点击图片查看原图

图片信息

  • 格式: JPG
  • 尺寸: 1080x810
  • 大小: 约1.2MB

版权声明

相关标签

自然风光 高清壁纸 4K画质

分享图片

相关推荐

基于当前图片的相似推荐

原创儿童绘本耶稣一生

原创儿童绘本耶稣一生

世人皆知圣经,可你知道圣经中耶稣的故事经历吗?

查字典图书网 漫画 漫画圣经故事——新约 试读在海面上,相信耶稣的

查字典图书网 漫画 漫画圣经故事——新约 试读三天后耶稣复活了,他

圣经故事儿童版hd 给宝贝孩子听基督耶稣的故事

圣经故事:耶稣受难ppt

随机推荐

发现更多精彩图片

头像女霸气冷酷无情 高清好看的女生专用霸气头像图片

今日头像一些抖音很火的头像

火影忍者武器模型猿飞阿诗玛查克拉兵器玩具动漫手办动漫挂件

灰色运动裤男士2020年秋冬季新款潮流宽松束脚休闲长裤子男裤卫裤

山东省残联领导一行莅临我集团调研考评残疾人文化产业项目发展工作

金色,花纹,底纹,花边,边框线,花纹花边,金色花边,金色花纹,欧式花边

别墅装修地下室采光井案例.别墅地下室采光井天窗高端大气上档次 - 抖

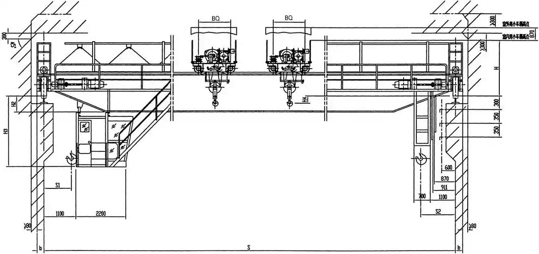
qe型双梁双小车桥式起重机结构图

夏日旅游哪里去,国家级5a景区-天津古文化街-等你来_可以在_天后宫

日本福岛海域出现大面积海产品非正 - 抖音

万圣节卡通狼人素材