金色,原子,象征

高清图片下载 免费 安全无风险
金色,原子,象征

金色,原子,象征

点击图片查看原图

图片信息

  • 格式: JPG
  • 尺寸: 350x350
  • 大小: 约1.2MB

版权声明

相关标签

自然风光 高清壁纸 4K画质

分享图片

相关推荐

基于当前图片的相似推荐

黄金以金原子单质形式存在,无法通过化学方法合成,只能通过物理方法

1-1 电子显微镜下的金原子

澳洲金矿出土天然黄金原石

金元素(au)金原子结构示意图模型8853037矢量图片免抠素材 科学地理

金原子的形成还得从宇宙大爆炸开始说起.

芠拉足金金粒子小金豆子亮面黄金原料实心金锭投资足金原料块金粒子

精品金疙瘩天然高纯度金矿石原石摆件矿物晶体观赏石精品石随机发2斤

肉眼下的金条 说明: 电子显微镜下的金条 物质是由分子组成的

金链子都见过,黄金原矿长啥样,你知道吗?

黄金原矿竟然长这样开眼界了

随机推荐

发现更多精彩图片

胡可曝最新时尚写真

岁生日照 穿红色长裙戴皇冠状态惊艳赵雅芝多大赵雅芝70岁2023-11-15

麻将室.棋牌室设计案例效果图

蓝色系动漫星空头像六人闺蜜冷色调唯美梦幻

找张图片做头像 小丑一半脸哭一半脸笑 一定是彩色!

最火的男生夏季发型两边推掉中间造型清爽干净潮流帅气

深入人心成为经典,《天龙八部》中的木婉清,《甄嬛传》中的华妃凉凉

000人付款淘宝定做篮球卡通人偶服装足球动漫人物头套露脸圆球人穿

【小区绿化】某小区绿化_cad图纸下载_土木在线

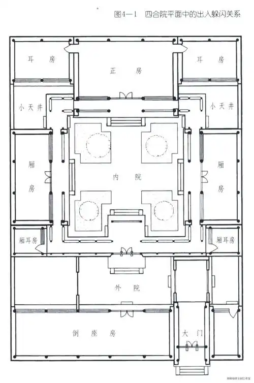
北京四合院的空间关系是如何布局的三

星空下的水平面h5素材背景

北控不敌辽宁赵继伟末节爆发,韩德君篮板球升至历史第二_比赛_1_cba