k室内常用cad填充图案180例

高清图片下载 免费 安全无风险
k室内常用cad填充图案180例

k室内常用cad填充图案180例

点击图片查看原图

图片信息

  • 格式: JPG
  • 尺寸: 640x414
  • 大小: 约1.2MB

版权声明

相关标签

自然风光 高清壁纸 4K画质

分享图片

相关推荐

基于当前图片的相似推荐

k室内常用cad填充图案180例

700个中文名cad填充图案请查收

k室内常用cad填充图案180例

700个中文名cad填充图案请查收

[分享]铺装图案cad填充资料下载

分享cad自定义填充图案图片资料下载

cad填充图案设计园林景观大理石木纹铺装cad自定义图案素材【图片

700个中文名cad填充图案请查收

cad动态图库丨填充图案 字体共5599套

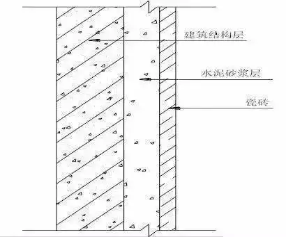
施工工序:处理基层→弹线→瓷砖浸水湿润→摊铺水泥砂浆→安装标准块

cad动态图库丨填充图案 字体共5599套

cad填充图案怎么操作?操作很简单_设计_功能_用户

随机推荐

发现更多精彩图片

这是一组古印谱里找的秦汉时期印章,有50.

墨镜一带谁也不爱|帅气的男生头像 今日语录:好看的皮囊千篇一律,可爱

剑灵项目图和倩女的外包

声乐教学 #简谱 #红豆 #简谱视唱 #钢琴简谱 #王菲 #王菲歌曲

党旗下--中国共产党新闻--中国共产党新闻-人民网

弹丸a1是这么叫吧的资料

园林规划植物配置表_word文档在线阅读与下载_免费文档

现代诗配画##简笔画 #手抄报 #手抄报模板 - 抖音

广州越秀公园图片_广州越秀公园高清图片_全景视觉

600公里东风猛士越野车进店真霸气国产硬派越野车东风猛士防护改装