茶卡盐湖下的天空之镜:大海里住着一条鱼,倒映出天空的眼泪!

高清图片下载 免费 安全无风险
茶卡盐湖下的天空之镜:大海里住着一条鱼,倒映出天空的眼泪!

茶卡盐湖下的天空之镜:大海里住着一条鱼,倒映出天空的眼泪!

点击图片查看原图

图片信息

  • 格式: JPG
  • 尺寸: 640x351
  • 大小: 约1.2MB

版权声明

相关标签

自然风光 高清壁纸 4K画质

分享图片

相关推荐

基于当前图片的相似推荐

【万物复苏送福利】游茶卡盐湖 寻天空之镜

茶卡盐湖全新旅游拍摄攻略建议收藏

甘南青海环线10日旅游攻略茶卡盐湖扎尕那

青海湖茶卡盐湖旅游攻略

西宁—青海湖—茶卡盐湖—茶卡镇day2:茶卡—柴达木盆地—翡翠湖

这次我选择的海西环线基本覆盖了茶卡盐湖,大柴旦翡翠湖,西台吉乃尔湖

西宁一citywalkday2: 西宁一茶卡盐湖一青海湖day3

全宇宙74西宁集9474西宁92d2:西宁74青海湖74茶卡盐湖

西北大环线 #茶卡盐湖 从8月5日起,只要行程卡带星号的,要有48小时

五一旅行西北310日行程秒懂攻略附地图

西宁周边重点旅游景点分布图_地图_云旅游网

随机推荐

发现更多精彩图片

2人基友头像沙雕智障图片

女生头像冷酷忧伤黑白头像精选 有一种人能爱我刻骨铭心

qq头像搞笑逗比高清好看的超级逗比搞笑图片头像

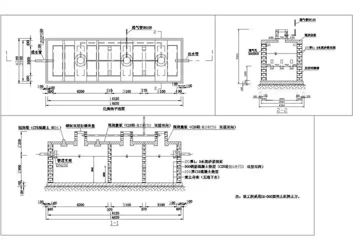
某地砖砌化粪池cad扩初图,可编辑(13号砖砌化粪池,无地下水,不过车

在russell square的剧本杀社玩,想玩酒本《酒大奇迹》喜欢喝酒的小姐

长龙航空怎么样长龙航空24小时客服电话

造价低就是它一个很明显的优势,加上现在的别墅不同于传统的自建房