p>洛阳东周王城,位于今 a href="#" data-lemmaid="6786279">洛阳市

高清图片下载 免费 安全无风险
p>洛阳东周王城,位于今 a href="#" data-lemmaid="6786279">洛阳市

p>洛阳东周王城,位于今 a href="#" data-lemmaid="6786279">洛阳市

点击图片查看原图

图片信息

  • 格式: JPG
  • 尺寸: 665x498
  • 大小: 约1.2MB

版权声明

相关标签

自然风光 高清壁纸 4K画质

分享图片

相关推荐

基于当前图片的相似推荐

p>洛阳东周王城,位于今 a href="#" data-lemmaid="6786279">洛阳市

周王城遗址,仿佛将人们的思绪带回到东周时期……|东周|城墙遗址|王城

博物馆第二展区的墙壁上,有"东周王城天子驾六卒马陪葬坑"的详细介绍

王城公园~东周王城遗址.

漫步河洛觅胜迹(47):东周王城(西工区)

东周王城遗址而得名,洛阳牡丹最佳赏花处,综合性王城公园

周王城遗址,仿佛将人们的思绪带回到东周时期……|东周|城墙遗址|王城

周王城遗址,仿佛将人们的思绪带回到东周时期……|东周|城墙遗址|王城

自拥5000多年文明史,"最早的中国"…洛阳其实没什么

p>洛阳东周王城,位于今 a href="#" data-lemmaid="6786279">洛阳市

周王城遗址,仿佛将人们的思绪带回到东周时期……|东周|城墙遗址|王城

随机推荐

发现更多精彩图片

4位"吃软饭",却不敢分手的男明星,妻子都是亿万富翁_丈夫_表演_甄子丹

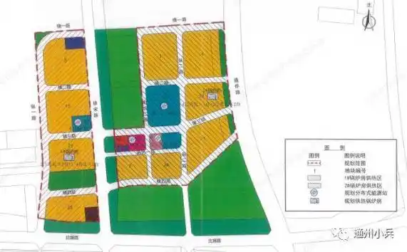
涉多村一级开发,通州这里规划大片住宅用地……_地块_宋庄镇_建设

火影壁纸cp组鼬和止水

火影忍者天天cosplay很销魂高还原度展现网友还我童年

金色腾龙图案psd素材

发光光线八卦19_1920x1080_高清视频素材下载(编号:5526985)_影视包装

自己diy制作植物花架的几个创意你更喜欢种类型

ka78m05 参数 datasheet pdf下载