苏州微笑口腔诊所_2105074 – 设计本装修效果图

高清图片下载 免费 安全无风险
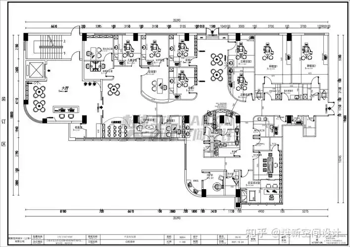
苏州微笑口腔诊所_2105074 – 设计本装修效果图

苏州微笑口腔诊所_2105074 – 设计本装修效果图

点击图片查看原图

图片信息

  • 格式: JPG
  • 尺寸: 1100x770
  • 大小: 约1.2MB

版权声明

相关标签

自然风光 高清壁纸 4K画质

分享图片

相关推荐

基于当前图片的相似推荐

2020年,口腔医院就该这样设计!

上海谭建芳口腔门诊部-谭建芳口腔门诊平面方案-1f平第13张图片

贝克创意空间设计口腔诊所平面布局参考#商业空间设计 #口腔诊所空间

诊所设计装修施工项目案例分享小刘口腔诊所

牙科诊所设计需要满足哪些功能

口腔诊所布局平面图图片

200㎡口腔门诊这样设计小而美

近境制作,台湾桃园全方位牙科,德国室内设计dinzd.com

秀齿孵化项目案例分享:章根训口腔!

某牙科诊所体验空间设计|空间|展陈设计|lyonchu - 原创作品 - 站酷

【威思口腔设计】设计案例--微笑牙科(南海店)

随机推荐

发现更多精彩图片

回车桌面>电脑壁纸>动物>可爱的小兔子文艺小清新写真>相关标签可爱的

fgo迦尔纳简评宝具拼命c技能疯狂拖后腿

【skrynnik dima】我的世界—水上小屋

cos和平精英小黄鸭大吉大利今晚吃鸡

卓顺杰进口abs五筋透气反光安全帽施工用工地工业安全帽包工头部保护

peaches吉他谱justinbieberc调吉他图片谱1张

图疑马天宇结婚照流出网传结婚育有混血女儿是否属实

财神_纹身图案手稿图片_辛露的纹身作品集

永修县中心城区品质提升epc工程日报

渐变玻璃小黑瓶膏霜精华包装高档美容院分装瓶化妆品乳液瓶洗面奶

母婴婴儿卡通婴儿车鸭子奶瓶素材妈妈母亲母乳喂养卡通母乳节母亲婴儿

过年要账的经典句子微信朋友圈催帐图片