女儿墙外排水

高清图片下载 免费 安全无风险
女儿墙外排水

女儿墙外排水

点击图片查看原图

图片信息

  • 格式: JPG
  • 尺寸: 855x708
  • 大小: 约1.2MB

版权声明

相关标签

自然风光 高清壁纸 4K画质

分享图片

相关推荐

基于当前图片的相似推荐

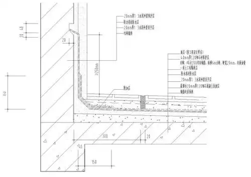
平屋顶女儿墙外排水三角形天沟:(a)女儿墙断面图;(b)屋顶平面图

知识宝库|屋面工程质量如何创优?中建工地这样干!_mm_女儿墙_高度

平屋顶女儿墙外排水三角形天沟的构造是怎样的呀

谁能给我个平屋顶带女儿墙排水的cad屋顶平面图啊

我想问问女儿墙这个排水沟怎么绘制啊怎么画出这个矩形排水沟

女儿墙及排水沟侧壁防水示意图9) 蓄水试验合格后用聚合物水泥砂浆对

女儿墙处雨水管构造示意图

外排水的屋顶形式有:沿屋顶四周设檐沟,沿纵墙设檐沟,女儿墙外设檐沟

现浇屋面防水节点(屋面防水,女儿墙泛水)

【檐口天沟大样图】女儿墙落水构造详图

随机推荐

发现更多精彩图片

20世纪70年代:凯瑟琳·丹妮芙——19.

【红木家具客厅】红木家具客厅哪款好?看实拍,买好货!- 京东优评

春天在哪里又名嘀哩嘀哩简谱分享

田姝丽超话#无法无田# 别摸 !老娘!059969♀15

二:3032-1048-1275-9755-29#艾特你想艾特的人 #和平精英#原创 #捏脸

北京地图分布北京地图区域分布图2022已更新今日动态

假面骑士时王皮套#假面骑士时王 #假面骑士zio - 抖音

曹瑞祥岭南画派传人海上花鸟大家

降价狂欢,4.4分推荐,炝锅黄牛肉( - 抖音

美国三军为了要钱能有多狠?空军飞行员不够用,自断臂膀要挟国会

赞芽ppt ppt图表 ppt结束页 16:9宽屏中国风唯美ppt汇报结束页图片

《新疆行》旅游途中的美女