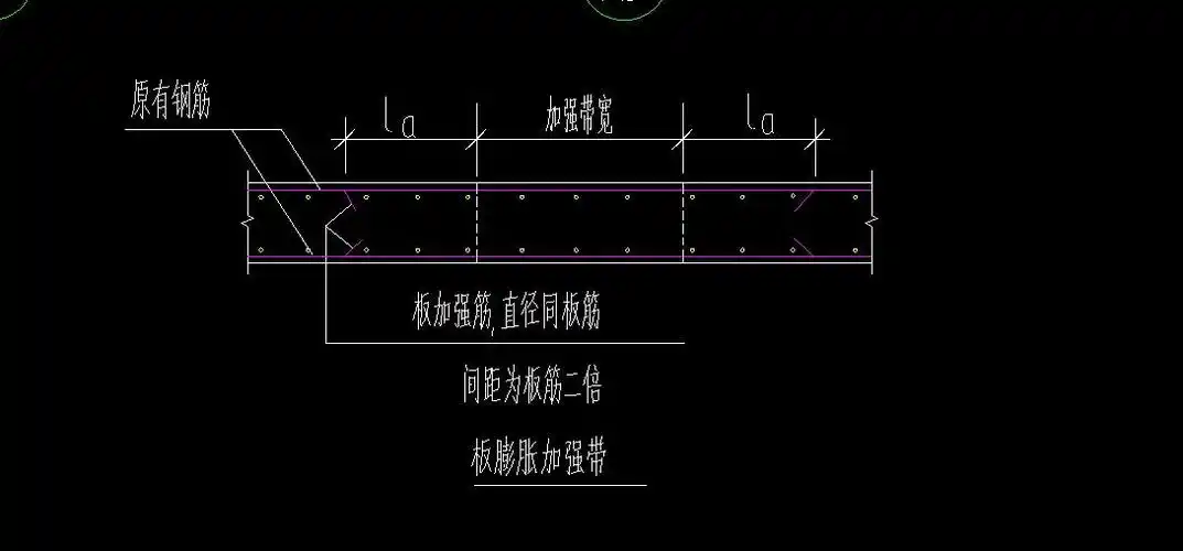
请问这个图纸上的钢筋是不是表示面筋是双层双向的

高清图片下载 免费 安全无风险
请问这个图纸上的钢筋是不是表示面筋是双层双向的

请问这个图纸上的钢筋是不是表示面筋是双层双向的

点击图片查看原图

图片信息

  • 格式: JPG
  • 尺寸: 733x630
  • 大小: 约1.2MB

版权声明

相关标签

自然风光 高清壁纸 4K画质

分享图片

相关推荐

基于当前图片的相似推荐

展开全部 朋友您好! 双层双向总共是两层钢筋网.

请问这种双层双向基础是这样布置吗?

双层双向钢筋和双层双向拉通钢筋有什么区别?

钢筋平法基础入门讲义(含柱,梁,墙,板平法)

楼层板为双层双向配筋,布板筋时是按单板布还是按图纸标注布

问题内容 双层双向钢筋的图示 意思是 8@200双层双向要布置,图种中

承台钢筋双层双向怎么定义啊

请问这么设置对吗原有板钢筋是双层双向c14150

老师们好我图纸中的板钢筋是双层双向的如图我画的是对的嘛

圆形水池底板钢筋12@200双层双向钢筋怎么计算

高层中正负零处双层双向板,底板钢筋100%在支座处断开行吗?

随机推荐

发现更多精彩图片

今日权志龙退役,还不忘给我们示范了一波军装怎么穿!

古力娜扎穿珍珠吊带裙露美背,仙品神颜美貌发光

库拉索芦荟自家植物可盆栽苗吸甲醛室内美容食用绿植芦荟汁多叶

逐波老北京布鞋布底太极武术练功圆口棉布布鞋纯布太极鞋

肋骨外翻导致水桶腰而且晚上容易打呼经典的动作练起来体态纠正运动

光遇白菇文3 平菇着白鸟来到了千鸟城,但是平菇突然有事,就让卡卡先给

毒死蜱和高效氯氰菊酯有什么区别?_百科知识-幸福起航

双子座简笔画双子座简笔画少女

枣鸭早呀谐音微信表情包聊天图片表情

2021成都蔚然花海星巢秘境音乐节

bryant)全新一代签名鞋款kobe ad已经上市,延续了后科比时代的设计