人类骨骼行走滑稽的死人卡通

高清图片下载 免费 安全无风险
人类骨骼行走滑稽的死人卡通

人类骨骼行走滑稽的死人卡通

点击图片查看原图

图片信息

  • 格式: JPG
  • 尺寸: 1100x1100
  • 大小: 约1.2MB

版权声明

相关标签

自然风光 高清壁纸 4K画质

分享图片

相关推荐

基于当前图片的相似推荐

散架骷髅全身简笔画

有趣的骨骼躺在地上微笑,人类骨骼孤立在白色背景,3d渲染

怎么你年纪轻轻,就一把"老骨头"了?

阿衰:用按摩椅用成全身粉碎性骨折?阿衰这下子玩大了!

爆笑ps系列美女发来图片让大神随便p图大神嘿嘿嘿

笔者:因为骨头散架了_漫画_教育_课堂

搞笑视频#我骨头都快翻散架了

梦见人骨架是什么意思_梦见人骨头架子是什么意思_长安人解梦

鬼屋密室道具 万圣节吊鬼恐怖装饰仿真人体骨骼恶搞道具塑料 骷髅

鬼屋密室道具 万圣节吊鬼恐怖装饰仿真人体骨骼恶搞道具塑料 骷髅

随机推荐

发现更多精彩图片

手绘画一个优雅高贵的女生动漫头像 画画日常分享 分享一组优雅高贵

北欧单人懒人沙发卧室休闲椅小户型现代简约客厅小沙发椅阳台椅子

3举报16分享原创作品动漫单幅漫画欧美人物插画人物插画手绘头像pro

图文著名明星徐若瑄写真5

王者荣耀:版本更新,小乔天鹅之梦迎来史诗级优化,细节非常用心

stkal00是华为哪个型号

弗兰克·格里罗 frank grillo的图片

武汉焊工证有4种知道吗?怎么报考知道吗?

银累丝烧蓝五蝠捧寿委角盒 清

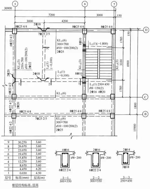
梁配筋图识读 - 结构理论

20201004黄山汤口镇山水休闲一日游