古建中的墙分为几种?都有什么讲究!_山墙

高清图片下载 免费 安全无风险
古建中的墙分为几种?都有什么讲究!_山墙

古建中的墙分为几种?都有什么讲究!_山墙

点击图片查看原图

图片信息

  • 格式: JPG
  • 尺寸: 998x932
  • 大小: 约1.2MB

版权声明

相关标签

自然风光 高清壁纸 4K画质

分享图片

相关推荐

基于当前图片的相似推荐

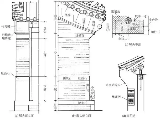
头的各个部位示意图微观古建古建筑的墀头一

古建墙面种类揭秘规则与讲究

古建中的墙分为几种?都有什么讲究!_山墙

是一种屋顶与墙山的组合形式,也是硬山山墙一种变异

福州古建筑山墙营造技艺二山墙基本形制

都说硬山悬山是基础但硬山悬山的这面墙却大有门道关于山墙不得不说的

官式硬山建筑墀头知识点6:江南封火山墙需要清楚什么是封过山墙(1)封

营造讲座 | 中国传统木构建筑中的非物质文化遗产-马炳坚

硬山顶与悬山顶类似,均由正脊和四条垂脊构成,不同之处在于两侧的山墙

随机推荐

发现更多精彩图片

tfboys-王俊凯 #王俊凯杭州

韩红曾表示不会救助非洲难民媒体吐槽格局太小网友却集体点赞

爱眼护眼,健康成长 ——艺术学校102班近视防护主题班会

"导读:小女孩古风发型推荐,和汉服的搭配不要太好看,无论是中秋还是

441_247gif 动态图 动图

幻化相关公式光45的新发型和新胡须是目前还没更新吗

7寸照片是比较常见的一种照片规格,一般用于冲印数码相机拍摄的风景

汇源芒果汁饮料罐头包装

doinb出现重大直播事故!糖小幽另一身份曝光,被质疑割粉丝韭菜