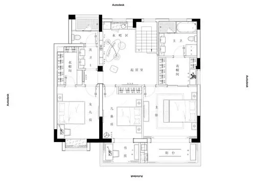
200平米的户型,做出了非同一般的优雅体验

高清图片下载 免费 安全无风险
200平米的户型,做出了非同一般的优雅体验

200平米的户型,做出了非同一般的优雅体验

点击图片查看原图

图片信息

  • 格式: JPG
  • 尺寸: 900x600
  • 大小: 约1.2MB

版权声明

相关标签

自然风光 高清壁纸 4K画质

分享图片

相关推荐

基于当前图片的相似推荐

现代风格四居200平米房子装修效果图-万科都市花园-业之峰装饰北京

绿地梧桐院200平简约中式风格

房屋户型:四室 房屋面积:200平方米 装修预算:50万元以上 所在城市

泰州碧桂园凤城府200平新中式风格

200平米新中式四居解决狭长走廊浪费空间问题

香榭里花园 后现代风格 200平方4房2厅3卫

找的200大平层布置的平面 求指导

作为一个200平方的大平层却没有一个大气的横厅,显示不出大平层的豪华

现代四居室200平米18万-绿地海珀天沅装修案例-济南房天下家居装修网

占地面积:12.2m*15.4m,186平方米左右; 建筑层高:一层; 建筑高度:6.

祁各庄200平米别墅新中式风格装修效果图

200平方新中式设计方案

随机推荐

发现更多精彩图片

大家对霍建华这个名字应该不会感到陌生.

这种瓷器出现即名品

寿宴舞台背景气球布置装饰

赵露思最美的古装《长歌行》造型

绝望崩溃流泪动漫头像女高清伤感动漫头像女生丧系痛哭图片

vivo小组件和时光序是绝配叭

>数字艺术>ai平面元素>人物>中国古代古典唯美古装美女手绘女子插画

个人心理成熟的具体表现都有哪些?

超好吃的家常菜60包菜炒粉丝好吃又下饭

最美不过相聚 - 草稿