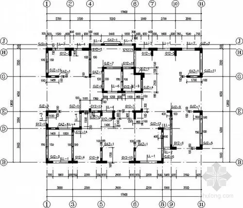
分享住宅框架剪力墙建筑平面资料下载

高清图片下载 免费 安全无风险
分享住宅框架剪力墙建筑平面资料下载

分享住宅框架剪力墙建筑平面资料下载

点击图片查看原图

图片信息

  • 格式: JPG
  • 尺寸: 760x608
  • 大小: 约1.2MB

版权声明

相关标签

自然风光 高清壁纸 4K画质

分享图片

相关推荐

基于当前图片的相似推荐

浅谈高层建筑框架剪力墙结构的设计_曹爱群

某23层高层住宅剪力墙结构施工图(cad)

[安徽]5栋剪力墙/框剪结构住宅楼结构施工图(2014)

装配整体式框架_剪力墙结构在住宅设计中的应用_李峰

框架剪力墙结构设计图纸-图一地下室剪力墙,框柱平面布置图及框柱配筋

pkpm程序在框架_剪力墙结构设计中的思考

某地十二层商住楼框架剪力墙结构施工图

16层框架剪力墙商住楼结构施工图

12层复式住宅建筑平面图,该地区为7度抗震设防,结构形式为剪力墙体系

41层纯剪力墙住宅楼结构施工图(cad,28张)

随机推荐

发现更多精彩图片

动漫简笔画卡通漫画手绘头像线稿二次元简笔画手绘线稿二次元可爱*^o

我的妹妹哪有这么可爱动漫桌面壁纸(4)-qq壁纸网

全套dota2的技能图标合集

又惊悚又搞笑,二龙湖浩哥新作上线,恐怖片竟然拍出了喜剧效果

至每一个在练功房里追光的女孩.#舞蹈写真 #舞蹈摄影写真 - 抖音

而这个膛线在传统手枪是需要精密的机械加工设备,用拉刀来拉出膛线,这

旅美速腾美国进口福特350srw路航者四驱越野房车上市啦

麻依云 的插画 山海经神怪志之——女娲

《老家》——魅力乡村

借钱看交情,还钱看人品!