does this encour

高清图片下载 免费 安全无风险
does this encour

does this encour

点击图片查看原图

图片信息

  • 格式: JPG
  • 尺寸: 313x300
  • 大小: 约1.2MB

版权声明

相关标签

自然风光 高清壁纸 4K画质

分享图片

相关推荐

基于当前图片的相似推荐

[空客] "家族飞行" 五架 a350 xwbs 一起编队飞行

空中客车airbus空客客机警示音合集部分gpws

空客上半年收入和利润大增

飞机制造巨头空中客车(airbus)换新logo

而是阳谋,既然美国你要同我们脱钩断链,要围追堵截

谷歌翻译20次空中客车简介世界杯球队的竞争

空中客车airbus空客客机警示音合集部分gpws

「attendee check in」搜索结果(共172条)

随机推荐

发现更多精彩图片

我的位置:>上观号>上海嘉定>文章详情>点击可查看大图根据专项规划

从pq46到mqb的进化新一代大众cc底盘解析

好吃美味的的dl生酮pita饼

绘画 #二次元 #厚涂练习 几张练习作业. - 抖音

图片来源:专家提供宝宝牙齿表面出现刮不掉的白点,一般是牙齿脱矿的

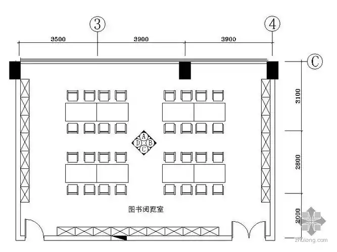
[分享]阅览室室平面资料免费下载