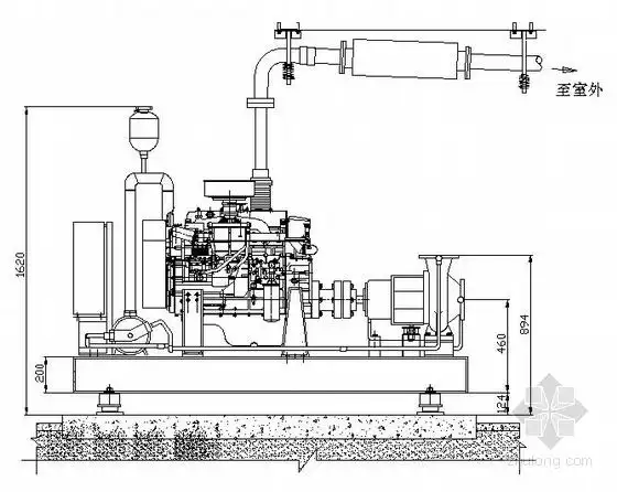
稳压泵后消防流量开关的安装位置应该装哪里

高清图片下载 免费 安全无风险
稳压泵后消防流量开关的安装位置应该装哪里

稳压泵后消防流量开关的安装位置应该装哪里

点击图片查看原图

图片信息

  • 格式: JPG
  • 尺寸: 406x276
  • 大小: 约1.2MB

版权声明

相关标签

自然风光 高清壁纸 4K画质

分享图片

相关推荐

基于当前图片的相似推荐

203d实景消防给水系统稳压泵

可在无火灾发生时,由稳压泵运行保证管网所需的消防压力,并能充分发挥

稳压设备注册消防工程师考试

消防泵房正规安装图解及详细说明

消防稳压泵控制原理图

注册消防工程师增压稳压设备c

老师为什么消防稳压泵都安在楼顶为什么地下室都有消防水池了屋顶还要

[分享]消防水泵安装资料下载

消防新规定稳压泵示祥图

英雄联盟安装系统怎么装(如何将旧电脑的重要软件移动到新电脑上)

消防双电源软启动稳压泵接线图

随机推荐

发现更多精彩图片

【莎丽·紫云剑法】虹七 虹仗 虹明 莎丽剑法合集

阿飞正传——早知道是这样,像梦一场

线条抽象人物头像元素

吴孟达谈《流浪地球》,剧组的工作量让外国演员都哭了

港区全国人大代表邝美云:做自己的大女主,愣是把自己活成了豪门_香港

9月11日,成都地铁一次性开通最长的线路,地铁5号线实现"洞通",朝着

引资引智 创业创新 ——韩城高新技术产业开发区

买榴莲:建议别只挑大的,牢记5句口诀,皮薄肉满,一挑一个准

220的电机是出来4根线么,,倒顺开关怎么接啊

馆藏分类我收藏整理了多种棒针编织花样的实例,既有织物,又有图解