省高级人民法院党组召开队伍教育整顿专题民主生活会

高清图片下载 免费 安全无风险
省高级人民法院党组召开队伍教育整顿专题民主生活会

省高级人民法院党组召开队伍教育整顿专题民主生活会

点击图片查看原图

图片信息

  • 格式: JPG
  • 尺寸: 640x427
  • 大小: 约1.2MB

版权声明

相关标签

自然风光 高清壁纸 4K画质

分享图片

相关推荐

基于当前图片的相似推荐

嘉宾:市委组织部副巡视员,部务会成员 张谦

【领导动态】张谦主持召开经济运行调度会议_邹平_企业_重点

【领导动态】张谦到魏桥镇开展"村村到"走访调研并调研春季农业生产

张谦调研疫情防控重点项目建设情况

滨城区委副书记,区长 张谦

回顾张谦病逝4年后遗孀李萍的选择令人泪目

张谦带队到北京中诚信国际考察拜访并见证签约

演员张谦病逝4年,未能见到女儿成人,遗孀李萍的决定让人泪目

【领导动态】张谦会见滨州银保监分局客人_发展_邹平_工作

随机推荐

发现更多精彩图片

演员@王佳佳esther身着#夏姿陈shiatzychen#黑色套装,利落干脆的现代

2020精选流行短发29款,一看就很心动,时尚瘦脸还洋气

二十一世纪以来世界主要灾难全纪录

白娘子的简笔画怎么画

改革开放四十年 变化就在我身边

巴厘岛蓝洞,随手一拍就是手机壁纸.#图文热点来了 - 抖音

第五人格新求生者勘探员技能曝光官方内部代号万磁王

美帝提二手w204 老款c300 求认证(多图,慎入)_奔驰c级论坛_手机汽车之

依兰花精油单方植物精油按摩女美容院精油spa精油皮肤现货批发

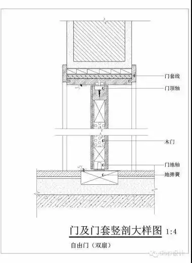
解析| 3种常见木门及门套的构造做法