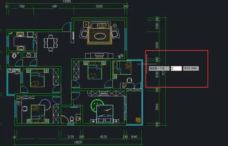
保利双拼合院别墅cad户型设计图

高清图片下载 免费 安全无风险
保利双拼合院别墅cad户型设计图

保利双拼合院别墅cad户型设计图

点击图片查看原图

图片信息

  • 格式: JPG
  • 尺寸: 1640x1171
  • 大小: 约1.2MB

版权声明

相关标签

自然风光 高清壁纸 4K画质

分享图片

相关推荐

基于当前图片的相似推荐

3,提供原始文件:客户将获得cad图纸的原始文件,可用于设计,材料计算或

[分享]cad图纸户型资料下载

新手必看cad小技巧,看完之后直接起飞!_坐标_曲线_命令

[分享]户型布置平面图cad资料下载

153套高层住宅三室户型图设计cad

科迅教育干货南通cad施工图培训大户型布局创意方案解析

(2)画个cad图是非常快的呢!做效果现在也有很多app能够一键生成效果图

[分享]两室一厅cad户型图资料下载

分享大户型复式cad资料下载

310㎡奢阔半层:630㎡一层一户:户型图:la cadiere御用设计大师陈建中

户型优化60㎡老公房精心改造5室2厅2卫cad施工图视频摄影

三层独栋别墅户型图cad图纸及透视效果图(cad jpg)

随机推荐

发现更多精彩图片

40岁林峰也做医美拉皮画面被曝光冻龄男神之谜疑被揭穿

肖战代言的品牌有哪些多达30个国内唯一三奢代言人

evolve-淬炼-2020年王者荣耀世界冠军杯主题曲双手简谱预览5

鲁班七号可爱头像图片大全 萌萌的头像q版

2362jpgpsd红色创意可爱招财猫电脑桌面壁纸1920 × 900jpgpsdxls

开心锤锤看动漫学画画

高二九班林安婷数学作业

重要征兆!055拉萨舰完成演练,中国航母编队最强形态即将现身