用半圆就可以画可爱的小动物的简笔画哦,画画小白都能学会,简简 - 抖

高清图片下载 免费 安全无风险
用半圆就可以画可爱的小动物的简笔画哦,画画小白都能学会,简简 - 抖

用半圆就可以画可爱的小动物的简笔画哦,画画小白都能学会,简简 - 抖

点击图片查看原图

图片信息

  • 格式: JPG
  • 尺寸: 1080x1528
  • 大小: 约1.2MB

版权声明

相关标签

自然风光 高清壁纸 4K画质

分享图片

相关推荐

基于当前图片的相似推荐

教你用椭圆形画各种可爱小动物简笔画主

可爱的小动物简笔画.

可爱又简单的小动物简笔画简笔画文化绘画

横线加半圆就可以画出各种可爱的小动物,从此告 - 抖音

100天简笔画教程|用椭圆组合就能画简单的小动物,可爱吧

可爱小动物简笔画手抄报 可爱的家乡手抄报

可爱的棕色小松鼠,图片,壁纸,动物-桌酷

动物简笔画 可爱的小狐狸简笔画图片小狐狸儿童绘画作品图集 狐狸简

手账素材可爱的小动物简笔画

小动物简笔画.有手就会的小动物简笔画来啦,粉粉们,你们最喜欢 - 抖音

动物简笔画动物简笔画小动物简单可爱

随机推荐

发现更多精彩图片

宋亚轩帅气新照引爆互联网,流量小生魅力无限

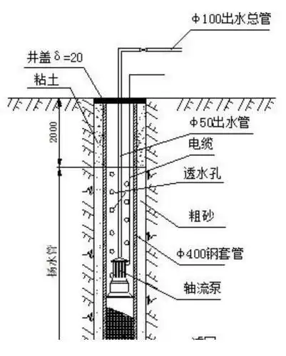
回灌井点和降水井点区别,回灌井点作用

2019年的年终总结来啦!

这20个明星替身太像了张柏芝被翻版自己惊到捂嘴巴刘嘉玲说8成像

硕茹 轻奢高端高档地球仪风桌面摆件客厅办公室家居时尚装饰品书桌

3 数据结构和算法 4 java高级 5 项目1-j2se 6 数据库 7 html和java

【98新】gucci1955马鞍包mini白色公价¥20500

日式加厚条纹麻纱透光不透人阳台书房飘窗卧室窗帘落地窗纱帘打孔

圣佳在线第32期 | 止水 — 铜镜专场

温岭一滨海绿道珍珠滩