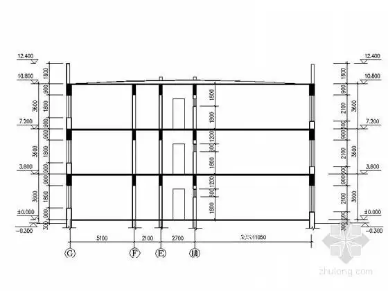
[毕业设计][学士]四层框架教学楼结构施工图(含建筑图)

高清图片下载 免费 安全无风险
[毕业设计][学士]四层框架教学楼结构施工图(含建筑图)

[毕业设计][学士]四层框架教学楼结构施工图(含建筑图)

点击图片查看原图

图片信息

  • 格式: JPG
  • 尺寸: 560x437
  • 大小: 约1.2MB

版权声明

相关标签

自然风光 高清壁纸 4K画质

分享图片

相关推荐

基于当前图片的相似推荐

复旦大学附属中学新建第二教学楼上海华都建筑规划设计有限公司hdd

[学士]五层框架结构教学楼毕业设计(含结构设计,建筑设计,计算书,毕业

现代风格市级重点中学教学楼建筑剖面图

香港中文大学深圳校区图书馆剖面图.jpg

[毕业设计][学士]五层框架结构中学教学楼毕业设计(含建筑图结构图

[毕业设计][学士]六层框架结构法律学院教学楼毕业设计(建筑图结构图

某小学三层教学楼建筑扩初图

随机推荐

发现更多精彩图片

庆阳西峰公安救助一只国家三有保护动物果子狸|野生动物_网易订阅

ins极简风人物线条设计简约手绘插画简笔画logo情侣头像定制diy

教你学会怎样辩别仓鼠91公母 教你学会怎样辩别仓鼠91公母

假发女短发 自然少女圆脸修脸酷帅气中性潮流时尚中短发假发套 你那么

公主抱沈月陈小希胡一天江辰soogifsoogif出品gif动图_动态图_表情包

【梦回|王安宇个人向|九万字】我也算万种风情 实非良人_哔哩哔哩

黄昏下的西湖唯美风景高清壁纸

暴漫 我的心好痛 伤心 心痛

古风水墨动漫(水墨画国漫)

在二战初期,零式战斗机具有转弯半径小,速度快,航程远的特点,美军的p

冀教版三年级三位数乘一位数口算题