酒店标准间设计ppt

高清图片下载 免费 安全无风险
酒店标准间设计ppt

酒店标准间设计ppt

点击图片查看原图

图片信息

  • 格式: JPG
  • 尺寸: 920x690
  • 大小: 约1.2MB

版权声明

相关标签

自然风光 高清壁纸 4K画质

分享图片

相关推荐

基于当前图片的相似推荐

标准客房装修图-宾馆酒店装修-筑龙室内设计论坛

一个酒店标间设计的25种思路

篇一五星级酒店市场调研报告

作者: 设计类型:室内设计 项目类型:酒店空间

一个酒店标准间的24个方案

[分享]一个酒店标准间的24种方案

成都酒店设计公司及酒店设计师收费标准是怎样的究竟多少合适呢

一个酒店的标准间30种思路挑选的24种方案

开间尺寸:4.5m度假型酒店标准客房5.

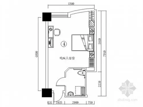
某时尚大酒店4号标准客房装修图

随机推荐

发现更多精彩图片

动物面具涂鸦 老虎面具图片小动物面具图案大全简笔画

简笔画|简单可爱女孩卡通手绘人物头像教程 零基础绘画|简笔画教程

可爱q版头像之白羊座女生卡通头像

育儿早教简笔画视频:在家就可以教宝宝画彩虹鱼

一步一步画一个侧立站着的男孩男孩简笔画大全人物侧面简笔画怎么画

藏式莲师火焰九头铁蝎子天铁蝎子吊坠饰品配饰手工密宗金刚杵收藏

蜗牛家养懒人学生宠物活体非洲罕见巨型情侣特色爬宠

男生军人霸气十足头像

2019年日历表图片下载-年历日历-百图汇素材网

模玩控漫画风格高达头像合集大家喜欢哪张呢