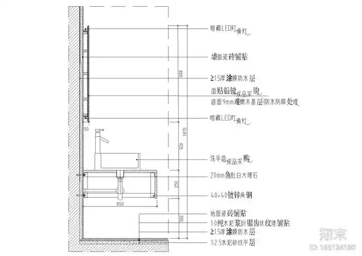
洗手台通用大样图下载施工图下载

高清图片下载 免费 安全无风险
洗手台通用大样图下载施工图下载

洗手台通用大样图下载施工图下载

点击图片查看原图

图片信息

  • 格式: JPG
  • 尺寸: 1648x1165
  • 大小: 约1.2MB

版权声明

相关标签

自然风光 高清壁纸 4K画质

分享图片

相关推荐

基于当前图片的相似推荐

箭牌卫浴arrow厨房304不锈钢黑色纳米手工水槽单槽洗菜盆洗碗池防污

九牧不锈钢洗碗池tc02117

jomoo九牧不锈钢厨房水槽套餐大单槽洗菜盆洗碗池水槽套餐

阿洛里洗菜盆纳米高压洗杯器水槽单槽阶梯式304不锈钢厨房高低洗碗池

现代洗手台节点大样施工图下载

手工水槽单槽 厨房304不锈钢加厚大单槽套餐台下洗菜盆水池

弗兰卡(franke)aax610-85不锈钢水槽(单盆)

左域304不锈钢浴室柜组合 洗手面盆洗脸盆柜组合 卫浴柜8007

洗手台通用大样图下载施工图下载

九牧不锈钢水槽06119tc

现代洗手台节点大样施工图下载

随机推荐

发现更多精彩图片

"why im probably insufferable irl"

2021年属相年龄对照表

包邮 上海梅林午餐肉罐头198g 小罐即食熟食火腿猪肉火锅早餐食材

男生头像帅气冷酷真人图片男生清纯个性高清头像图片大全

捷优印300贴卷儿童卡通姓名贴不干胶自粘手写diy柜子分类学校书本标签

天工阁丨精选壁纸阴姬

脊髓损伤的神经系统查体ppt

北师大版小学三年级上册英语电子课本高清完整版

【北瀚卡通娃娃】泰迪熊毛绒玩具抱抱熊玩偶布娃娃小熊公仔大号送女友

运动员打羽毛球的概念插画-正版商用图片1nun28-摄图新视界