古代王府的面积一般多大? - 知乎

高清图片下载 免费 安全无风险
古代王府的面积一般多大? - 知乎

古代王府的面积一般多大? - 知乎

点击图片查看原图

图片信息

  • 格式: JPG
  • 尺寸: 1800x2243
  • 大小: 约1.2MB

版权声明

相关标签

自然风光 高清壁纸 4K画质

分享图片

相关推荐

基于当前图片的相似推荐

03 府邸 与平头百姓的民宅相比 富户们的院落 增加到了四进或五进

清朝官员工资从九品到正一品正一品官员相当于现在什么官

美好的事物值得等待华润半山悦景望族府邸的三重门设计灵感

假如云梦江氏穿越回民国,有一处宅第非常适合他们:东山雕花楼

单体与组群中西传统建筑的空间艺术之辨

和珅府邸,一座藏着半部清朝史的顶级豪宅!

恭亲王府高清平面图第1页

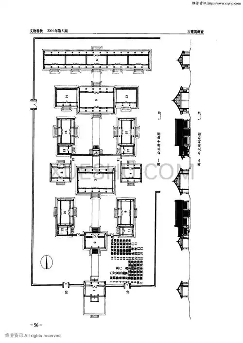
清早期王府实例——和硕恪靖公主府

随机推荐

发现更多精彩图片

哥斯拉怪兽拟人同人昭和篇

摸男演员腹肌帮拉裤链的曾舜晞新剧晒肌肉奶帅条顺小哥谁又可了

抖音网红彭十六清新甜美居家写真,高清壁纸图片,可爱美女-回车桌面

《蜡笔小新》是日本已故漫画家臼井仪人的代表作.

【chaesoo|酥肉cp】喜歡你們很重視對方意見的時候

"麦田与收割者"97作者:(荷兰)梵高 97时间:1889年 - 抖音

双牌县地图_双牌县卫星地图_中国湖南省永州市双牌县高清卫星地图

龙虎门 龙虎门的海报