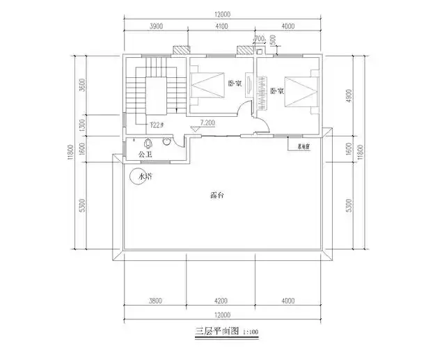
这样的农村自建房二层别墅设计,你喜欢吗 本期推荐二层别墅设计图纸,

高清图片下载 免费 安全无风险
这样的农村自建房二层别墅设计,你喜欢吗 本期推荐二层别墅设计图纸,

这样的农村自建房二层别墅设计,你喜欢吗 本期推荐二层别墅设计图纸,

点击图片查看原图

图片信息

  • 格式: JPG
  • 尺寸: 1348x1280
  • 大小: 约1.2MB

版权声明

相关标签

自然风光 高清壁纸 4K画质

分享图片

相关推荐

基于当前图片的相似推荐

经典独户型住宅设计cad建筑平面方案图纸_住宅小区_土木在线

11x10三层别墅设计全套图纸 - 住宅在线

某高层框架结构商场设计cad平面方案图纸_框架结构_土木在线

占地12*12,三层欧式别墅全套设计图纸 - 住宅在线

农村住宅建筑整套cad 设计图纸_住宅小区_土木在线

某简约风格两居室130平米住宅室内设计施工图_三居室_土木在线

摔瓶双拼欧式风格别墅设计图 | 喜盖房 - 设计施工一条龙

两层简欧别墅 拱形窗户设计 布局设计合理 - 乡村住宅在线

红叶小区住宅楼建筑平面户型设计cad施工图纸_住宅小区_土木在线

280平米3层框架节后单体乡村别墅全套建筑设计cad图纸_别墅建筑_土木

12x13三层新中式别墅设计全套图纸 - 住宅在线

中式风格含(储藏间及露台)坡地形房屋设计图 效果图-盖房网

随机推荐

发现更多精彩图片

6/17 二硕更新ins快拍 长发造型 魔女2 #李钟硕ins动态更新# #人间

陈宝国在拍电视剧大宅门时为何每天要服用安眠药入睡

00ysl black opium 黑鸦片!

最新当代艺术装置,墙壁挂画装饰,极简,轻奢,当代

西瓜:我一句话没说被刘华强劈了18刀

标致姜戈150,甜甜的糖果味

焰灵姬你只知道吃白月初我还知道钱

费玉清的"感情洁癖",拒绝入赘日本女友,如今那个女孩咋样了

节肢动物 #昆虫 #鞘翅目 #甲虫 #叩甲 #叩头虫 #幼虫 #金针