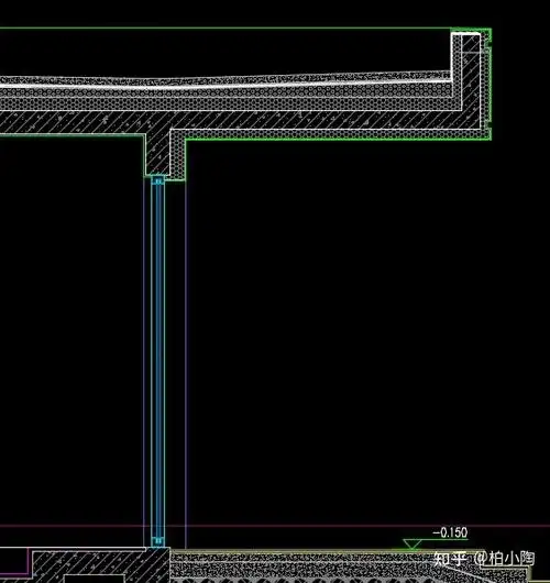
仿古建筑详细门大样立剖面cad图纸

高清图片下载 免费 安全无风险
仿古建筑详细门大样立剖面cad图纸

仿古建筑详细门大样立剖面cad图纸

点击图片查看原图

图片信息

  • 格式: JPG
  • 尺寸: 610x861
  • 大小: 约1.2MB

版权声明

相关标签

自然风光 高清壁纸 4K画质

分享图片

相关推荐

基于当前图片的相似推荐

剖面图中剖到墙墙里面有门怎么画

cn213540097u_一种铰链侧加强型钢质门有效

现代家装入户木门cad深化立面节点图50个门剖面大样图cad施工图

某双开胡桃木嵌压花玻璃门cad全套构造设计大样

某防火门竖剖cad平面剖设计节点图

仿古建筑详细门大样立剖面cad图纸

23个金属门立断面节点详图

本图纸为:某地柚木平板单开门详图纸,内容包括:柚木平板入户门纵剖面

随机推荐

发现更多精彩图片

王一博献唱杭州亚运火炬传递歌##王一博终于玩滑板了

君乐宝老酸奶原味益生菌发酵乳风味酸牛奶营养早餐奶12*139g盒装

在农村宅基地建房有什么规定

杀戮跟踪超话我会戴上戒指,亲吻你的伤痕#cos##吴尚宇

剪映如何修改文字动画

适合室内养殖的几种花卉,新手也能养好

公元纪年对照表doc5页

数学手抄报一等奖展览(一)

庞博觉硬笔书法字帖--卜算子.咏梅