安装地漏

高清图片下载 免费 安全无风险
安装地漏

安装地漏

点击图片查看原图

图片信息

  • 格式: JPG
  • 尺寸: 750x522
  • 大小: 约1.2MB

版权声明

相关标签

自然风光 高清壁纸 4K画质

分享图片

相关推荐

基于当前图片的相似推荐

解决卫浴难题,从正确安装地漏开始!

屋面地漏节点防水大样图

50,75mm),地漏尺寸可以偏小,但不能偏大,偏大无法安装

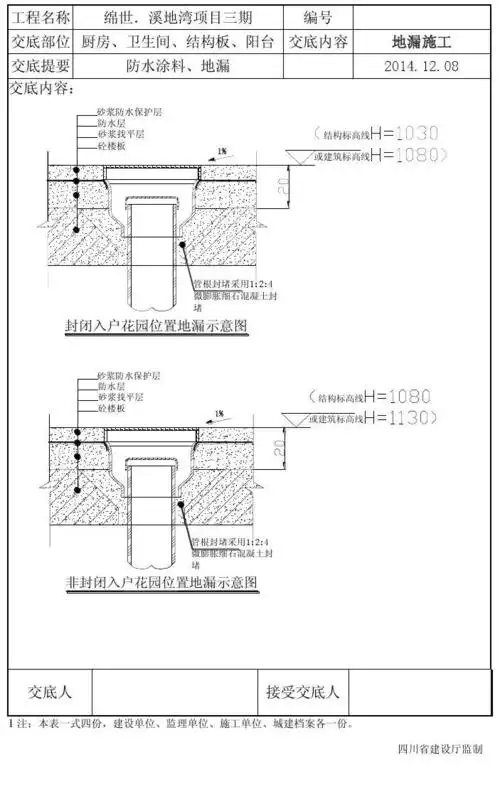
地漏施工技术交底14-12-08

屋面,露台地漏汇水区直径宜≥500mm,坡度宜≥5%,如下图所示:三,排水口

地漏安装尺寸多少合适

斯格雅 地漏 防臭 不锈钢 防臭地漏芯 洗衣机地漏可选 热销万件

铺瓷砖前完成地漏的安装.

地漏与瓷砖的4种拼接方法及安装工艺

③垫层施工前安装第二节地漏,顶部标高同垫层.

地漏尺寸地漏尺寸如何确定

随机推荐

发现更多精彩图片

有趣超大的熊猫头霸屏表情包最近刷抖音看到了快乐聊天时熊猫头必不可

官宣结婚7个月后,国乒帅哥周雨晒照宣布军艺美女娇妻生下孩子:一生有

gate),位于 a target="_blank" href="/item/德国/147953" data

中国黑 厂矿直销-无中间商专注:中国黑-石圈-中国石材网

北京大钟寺永乐大钟古钟博物馆.

小河豚生气了,鼓鼓的肚子看起来特别可爱!

扫黑除恶|中央督导组肯定广州扫黑除恶工作

在古代战场上,粮草有着三大作用:供给保障,稳定军心,取胜工具

三维工匠金萌羊存钱罐大号陶瓷储钱罐生肖羊年礼品摆件十二生肖金羊