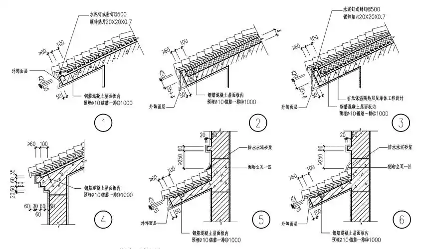
市]某豪园三期a5型别墅-檐口节点详图-建筑节点详图-筑龙建筑设计论坛

高清图片下载 免费 安全无风险
市]某豪园三期a5型别墅-檐口节点详图-建筑节点详图-筑龙建筑设计论坛

市]某豪园三期a5型别墅-檐口节点详图-建筑节点详图-筑龙建筑设计论坛

点击图片查看原图

图片信息

  • 格式: JPG
  • 尺寸: 953x590
  • 大小: 约1.2MB

版权声明

相关标签

自然风光 高清壁纸 4K画质

分享图片

相关推荐

基于当前图片的相似推荐

屋面檐口(五)-桂北传统建筑设计施工-图片

分享坡屋顶别墅檐口节点详图资料下载

建筑图纸外檐详图,哪位大神知道这个图怎么看? - 知乎

经典钢结构彩板外檐详图

别墅檐口cad素材,别墅檐口cad施工图纸下载

分享住宅檐口资料下载

上人屋面斜檐口大样是这样的怎么建模呀

这种屋顶,檐口怎么画

随机推荐

发现更多精彩图片

传杨幂魏大勋官宣结婚婚礼现场照曝光

男人留胡须的益处和魅力

泰迪熊成为热门毛绒玩具源自电影《泰迪熊》.

东宇厢式运输车 njl5040xxy1

暂无店铺服务三维角色动画卡通 3d人物吉祥物3d建模骨骼绑定

琅琊榜飞流拉弓射大雕

苗族银饰 | 古老技艺的錾美之美 璀璨苗银之项圈 项圈由小到大多达

贵州黄平产地最近太子参价格小幅度涨 - 中药材产业信息门户网站