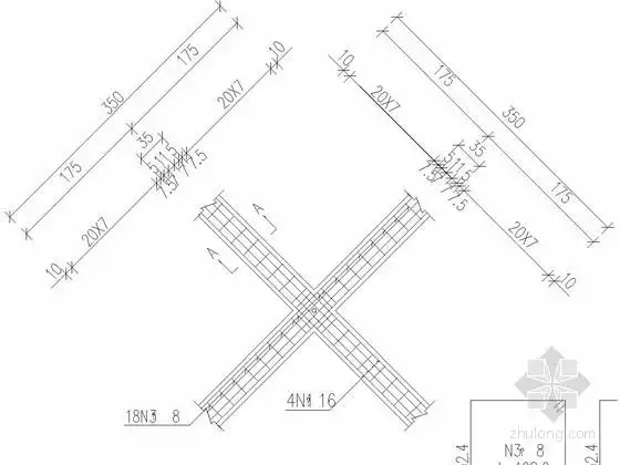
锚杆框格梁护坡施工方案

高清图片下载 免费 安全无风险
锚杆框格梁护坡施工方案

锚杆框格梁护坡施工方案

点击图片查看原图

图片信息

  • 格式: JPG
  • 尺寸: 920x1302
  • 大小: 约1.2MB

版权声明

相关标签

自然风光 高清壁纸 4K画质

分享图片

相关推荐

基于当前图片的相似推荐

锚杆框格梁边坡施工方案

锚杆框格梁护坡设计图立即下载立即下载项目位置:广西施工组织设计

框梁水平加腋施工方案

[河南]高速路基锚杆框架梁植草护坡施工作业指导书

框格梁锚杆公路边坡防护设计施工图

[云南]12米高边坡框格梁锚杆支护设计方案(计算书图纸齐全)

[分享]框格梁护坡施工资料免费下载

锚杆框格梁边坡施工方案

框格梁锚杆公路边坡防护设计施工图

三,支护设计依据规范 四,设计原则及方案 五,边坡支护方案 六,施工

框格梁锚杆公路边坡防护设计施工图

框剪结构模板与承重架搭拆工程专项施工方案

随机推荐

发现更多精彩图片

山河令阿絮张哲瀚手机壁纸

说到韩国,宇宙最少女的该是治愈系妆容鼻祖—朴敏英!

【图文】爱卡四驱讲堂(3) 奔驰4matic低调前行(3)_爱卡汽车

龙珠超孙悟空完美自在极意功高清壁纸(白神孙悟空壁纸)_acg人物网图片

芳华同款绿军装65式怀旧军装男女影视舞台表演雷锋红卫兵摄影服装

中间棲姬[舊作]-舰队collection深海栖舰

初中常见元素原子团名称化学式化合价相对原子质量一览表精编

2022升级款世·达工具沾塑柄欧式活动扳手活络扳手47248 47249 47250

【引用】中医面诊内容探谜

你助我解除封印,我保你一世周全# 笔仙大战贞子2