盘扣式支撑系统各构件名称

高清图片下载 免费 安全无风险
盘扣式支撑系统各构件名称

盘扣式支撑系统各构件名称

点击图片查看原图

图片信息

  • 格式: JPG
  • 尺寸: 296x503
  • 大小: 约1.2MB

版权声明

相关标签

自然风光 高清壁纸 4K画质

分享图片

相关推荐

基于当前图片的相似推荐

> 解析高层钢结构的中心支撑 中心支撑是 高层钢结构常用的支撑类型

岭南课堂 | 乔木栽植精细化管理之支撑

钢支撑有多少种,你知道吗?

屈曲约束支撑的应用分类准则与性能标准-结构专业论文-筑龙结构设计

基坑钢支撑体系设想中日对比,有对比才有进步

附着支承结构的9种形式示意

一种节能装配式建筑轻钢支撑结构

一种建筑用辅助支撑结构

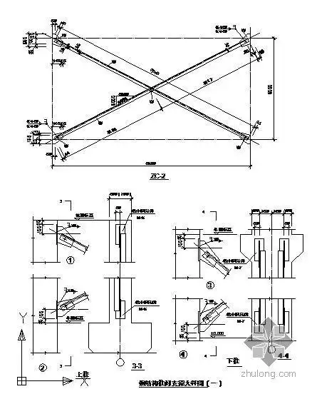
某钢结构支撑设计节点构造详图

随机推荐

发现更多精彩图片

头像| 渣男必备痞帅ins欧美风男生头像 - 知乎

李思思素颜芳菲清纯淡雅

150b 油性彩铅手绘动漫《火影忍者》主角:鸣人#手绘#动漫

儿童小火车简笔画教程

中国风养生足疗按摩刮痧拔罐价格表价目表

《龙珠》特兰克斯pixiv插画图片

湾区美睫 #旧金山美容 #旧金山美甲 #旧金山 #睫毛 #嫁接睫毛

首先打开手机,我们在手机上打开设置页面,在页面中找到"隐私"选项

10棵玫瑰花苗 月季花苗扦插小苗玫瑰花盆栽花卉观花植物四季种植

【老牌正品】草本专家止痒王抑菌乳膏20g正品止痒王本草软膏

住宅设计:同是四四方方的坡顶房,这个二层带阁楼的房子可不一样