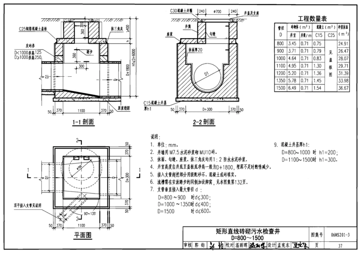
市政工程06ms2013第21页

高清图片下载 免费 安全无风险
市政工程06ms2013第21页

市政工程06ms2013第21页

点击图片查看原图

图片信息

  • 格式: JPG
  • 尺寸: 1047x722
  • 大小: 约1.2MB

版权声明

相关标签

自然风光 高清壁纸 4K画质

分享图片

相关推荐

基于当前图片的相似推荐

[分享]06ms201市政排水管道工程及附属设施图集介绍

谁有06ms201一3p37页的图集?

06ms201-1图集17页c1c2是什么意思

标准图集06ms201-3,标准图集06ms201-8,这两种井套哪条清单和定额

文档下载 所有分类 > 06ms201-3排水检查井图集侵权投诉 上一页第16页

文档 建筑 99j201-1图集 价格: 153土木币vip: 107 土木币 可开票10万

丫露空间-06ms201-3,《排水检查井》-第116页

求06ms201-3-44图集 在线等 急

06ms201市政排水管道工程及附属设施3

无忧文档 所有分类 工程科技 建筑/土木 06ms201-1图集 第15页 (共46

随机推荐

发现更多精彩图片

瓜子脸女生剃鬓角锅盖头短发发型

马克笔手绘q版可爱少女萌图一波嗷

【已售】北京美协凌雪三尺松鹤图《松鹤延年》

爱的延续从降生到起飞七彩神仙繁殖高清图片记录

秸秆打包机厂家直销

看惯了职场上帅气的向总,穿着洁白婚纱的宋茜真的太温柔!

丝素蛋白所含部分种类氨基酸的分子结构式(供图/李云哲)